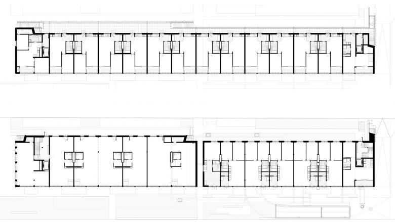
Neubau Wohnhaus mit Gewerbe am Bahnhof Töss
Neubau mit Gewerbeflächen und 51 Wohnungen
2017 Wettbewerb 1. Rang
Preisträger AW20
- Année
- 2020
- Statut du projet+
- Construit
- Client
- Luzerner Pensionskasse LUPK, Halter AG Zürich
- Équipe
- Monika Kilga, Stephan Popp, Andreina Schnellmann, Deborah Andermatt, Urs Bösch, Emanuel Charles, Marco Stalder
- Landschaftsarchitekten
- Krebs und Herde
- Bauleitung
- Halter Gesamtleistungen AG, Zürich
- Bauingenieur
- Synaxis AG, Zürich mit Holzbaubüro Winterthur
- Bauphysik
- Raumanzug GmbH, Zürich
- Fassadenplaner
- mbp Schwyz, Seewen
- Haustechnik
- 3-Plan Haustechnik, Winterthur
- Elektroingenieur
- Mettler und Partner AG, Zürich
























