Fittja Terraces

Fittja Äng, Botkyrka, Suède

A new mix and complement to the neighbourhood in Botkyrka.

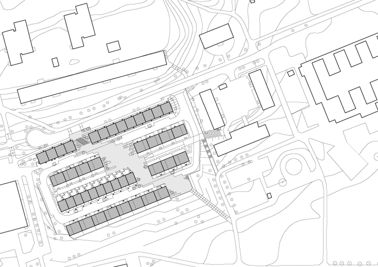
Fittja Terraces is an urban regeneration project, in the southern suburbs of Stockholm. Central Fittja was planned and built in the early 1970´s, and is a socially problematic area with a high degree of social housing. The client joined the municipality’s aim to vitalise and develop the area, with a deliberate focus on mixing different sizes of households, forms of tenure and complementing the area's homogeneous nature. The overall aim was to create opportunities for a housing career locally, in order to achieve long-term socio-economic possibilities and vibrant supportive public space.  The project proved very popular: all units sold quickly and 80% of the buyers were local residents.

The site is set on a terrace above the landscape sloping towards the water. The main idea is to connect the three distinct spatial characters and scales of the setting: the local centre, the common meadow and the band in-between, consisting of low-rise community functions i.e. school, pool and park structures. A diagonal sequence is created through a series of informal public spaces, which opens up visual access and connects pedestrian movement through the terrace blocks. The central square is filled with everyday functions and city life. Private spaces are located on different levels as roof terraces, intimate gardens and entry spaces. 

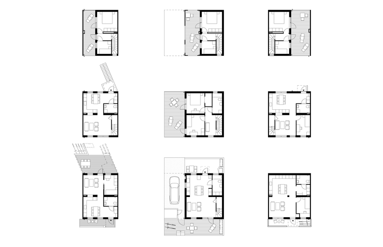
The housing units vary from one-room studios to efficient 4-6 room apartments and terraced houses. A focus has been on generation-living strategies, offering possibilities for large families and relatives to live within the area. New streets are shared-space environments, where the surface treatment from the diagonal space extends onto adjacent streets. 

The buildings are constructed with prefabricated timber elements. Few but flexible module types have been combined to create variety. The exterior treatment of stained timber panels, of alternating width and colour, references nature and the existing fabric.

Année
2013

Autres projets de Kjellander Sjöberg 

Paushuset
Suède
Gjuteriet
Malmö, Suède
Citadellskajen
Malmö, Suède
Annedalsterrassen, Green housing development
Stockholm, Suède
Villa VY, Private residence
Stockholm, Suède