Abitazione Verticale
Con L. Molo
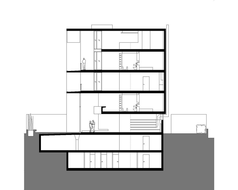
Dalla sovrapposizione di due case unifamiliari su una minuscola particella nasce una palazzina urbana, in cui a un’unità spetta la terra e l’estensione dello spazio interno nel giardino, all’altra il cielo e la proiezione verso la vista. Tra le due unità principali è inserito un appartamento ad un piano.La complessa geometria risponde alla forma della parcella, al sole e alla vista.
La parcella si situa a nord di una collina facente parte di una grande proprietà parcellata a partire dal primo Novecento. La via Bertoni risale a quell’epoca e funge da limite tra una zona di palazzine con giardino sorte lungo la strada attorno agli anni Venti e un’edificazione successiva, anni 1960-1980, di maggiore altezza e volume . L’edificio cerca di mantenere le caratteristiche del quartiere, formulando una versione contemporanea della palazzina residenziale con giardino. Il volume è compatto e si articola in parti incavate, logge e terrazze, che creano un rapporto con la strada, gli edifici circostanti, il sole e la vista.
L’accesso alla casa avviene a fianco dell’entrata del posteggio coperto, tramite una scala che costeggia l’edificio sui lati est e nord. Il vano scala dell’edificio forma una rientranza all’interno del volume. Al pianterreno si accede al primo appartamento duplex. Attraverso il vano scala si accede al 2° piano all’appartamento di mezzo e al 3° piano all’appartamento duplex superiore. Il giardino è suddiviso in una parte comune e una parte privata, riservata all’appartamento al pianterreno. La parte comune e l’affaccio sulla strada riprendono piante e modalità dei giardini circostanti, mentre nella parte più privata si cela un giardino misterioso e selvatico, un microcosmo che dà respiro a tutto il duplex inferiore.
L’edificio, in cemento armato facciavista, viene isolato all’interno e rivestito da pareti e soffitti in cartongesso bianco. Lo spazio interno continuo è modulato da elementi divisori in legno colorato, dall’arancio al rosso al viola, che creano le nicchie delle stanze e dei bagni. I serramenti in alluminio incorniciano grandi aperture su viste lontane o vicine, le cime dei Denti della vecchia e del Generoso o il muro verde del giardino. I pavimenti in duratex sottolineano la continuità tra interno ed esterno.
- Année
- 2007
- Statut du projet+
- Construit









