Schulanlage Saatlen

Zürich
Ecke Saatlenstrasse - Tramstrasse

.

Pausenplatz
Foyer Sportanlage - Mensa - Mehrzweckraum
Bewegungszone SKB
Stadtplan
Strukturmodell
Situation
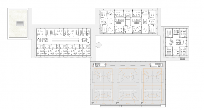
Erdgeschoss
1. Obergeschoss
2. Obergeschoss
Ansicht SEK - Schnitt PRIM - Ansicht SKB - Schnitt KDG
Ansicht KDG - Schnitt SKB - Schnitt Schwimbad - Ansicht PRIM - Schnitt SEK
Schnitt Turnhalle - Pausenplatz - Primarschule
Konstruktion
Année
2020
Statut du projet+
Design
Équipe
Landschaft: Claudia Wolfsenberger

Autres projets de Leuppi & Schafroth Architekten 

Neubau Rütiwiesweg
Zürich, Suisse
Villa Thuja
Boppelsen, Suisse
Erweiterung Volksschule Stapfenacker
Bern, Suisse
Fussgänger und Fahrrad Brücke
Kiew, Ukraine
Neubau Betreuungsgebäude Aemtler
Zürich-Wiedikon, Suisse