Первомайская I
Жилой дом комфорт класса
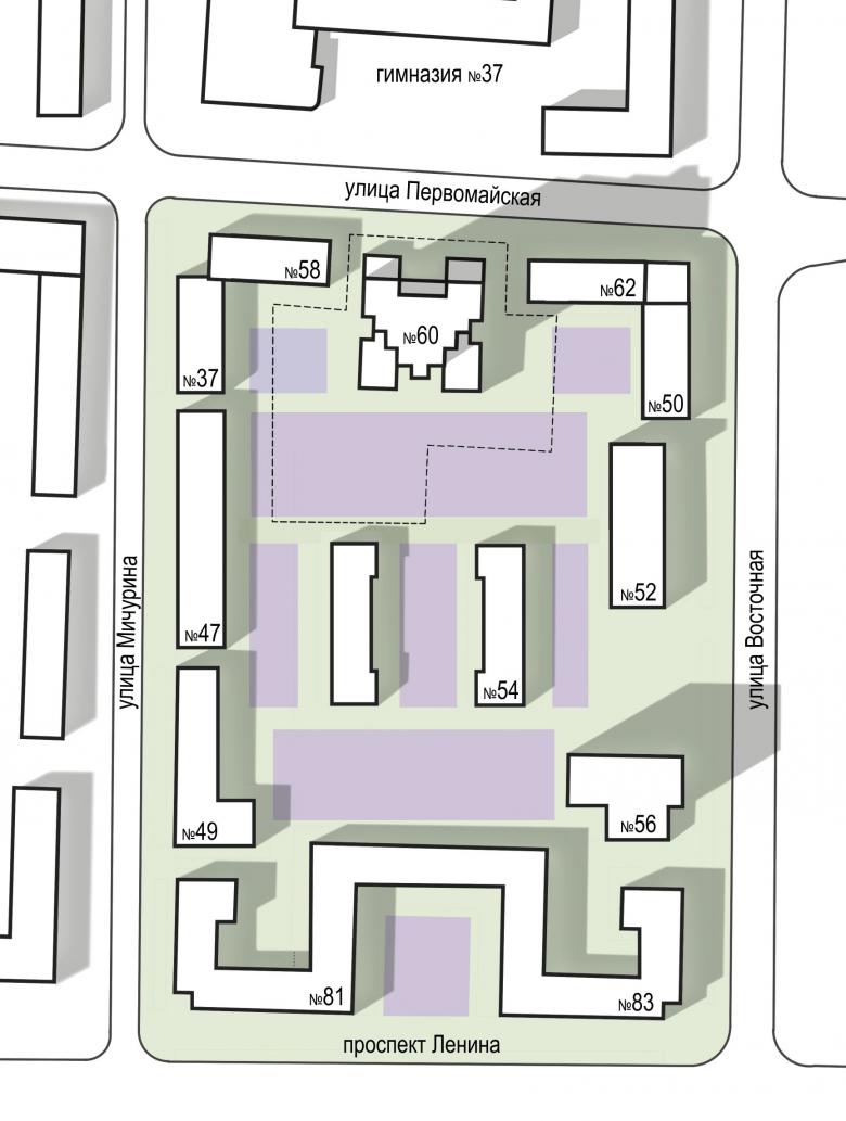
Жилая башня фиксирует ось симметрии квартала и акцентирует курдонер гимназии на противоположной стороне улицы. Общественный сквер перед старым зданием, пришедший в запустение, переносится в центр квартала и становится поводом для развития его сердцевины.
Форма башни результирует инсоляционные ограничения и стремление к стройным пропорциям классических высотных зданий. Симметричные ризалиты уступами спускаются на землю, создают активный силуэт и акцентируют масштаб сложившейся застройки. Строгий материальный фасад подчеркивает элитный класс жилья и усиливает сложившийся характер этого центрального квартала.
Параметры
Планировочный объект – квартал
Площадь участка – 0,58 га
Типология – башни
Общая площадь здания – 33 865 м²
Полезная площадь – 29 646 м²
в том числе:
Площадь квартир – 14 081 м²
Коммерческие помещения – 1 765 м²
Помещения общего назначения – 4 735 м²
Подземная автостоянка – 9 064 м²
Количество квартир – 156
Средняя площадь квартиры – 90 м²
Плотность жилого фонда – 24 177 м²/га
Количество машиномест – 250
в том числе:
В подземной автостоянке – 250
- Statut du projet+
- Design
- Client
- Prinzip
- Équipe
- Alexander Samarin, Andrey Shushlebin, Daria Yarovenko, Polina Isyanyulova, Andrey Gushchin, Antonina Savilova, Rostislav Tsaiser, Natalia Cherepanova, Kirill Isaev, Anton Danilov, Roman Davydov














