A-NOBIS Szigeti Sektkellerei

Zurndorf, Autriche
Photo © Architects Collective

Die neue Sektkellerei von Norbert Szigeti, einem der Pioniere für erlesenen Sekt aus Österreich, wird nicht nur Produktionsstätte sein, sondern repräsentative Architektur in der Hochwertiges geboten wird sowie ein Treffpunkt und Ort des Genusses.

Ein neuer Tempel für Genuss
Das quadratische Bauwerk liegt selbstbewusst, aber zurückhaltend, in der parkartigen Landschaft im burgenländischen Zurndorf und führt regionale Einflüsse und zeitgenössische Baukunst zusammen. Der ruhige Massivbau wird von einem auskragenden Holzdach durch Regen und Sonne geschützt und von einem schleierartigen Metallgewebe, in dem sich die Perlage des Sekts widerspiegelt, umhüllt. Der leicht geschwungene Rundgang zwischen massiver Wand und durchlässigem Schleier dient dazu, die Sinne zu schärfen und sich auf den Genuss und das Abenteuer einzulassen. Im Inneren des Bauwerks liegt die Oase der Ruhe: Ein quadratischer Hof mit regionalen Steppengräsern, Sträuchern und Bäumen und einem kreisförmigen Vordach, das sich zum Himmel hin öffnet. Das Gebäude ist als gläserne Produktion konzipiert, in der die einzelnen Stationen der traditionellen Flaschengärung, wie sie in der Champagne bekannt sind, vom Besucher durchschritten werden.

Lageplan
© Architects Collective
Photo © Architects Collective
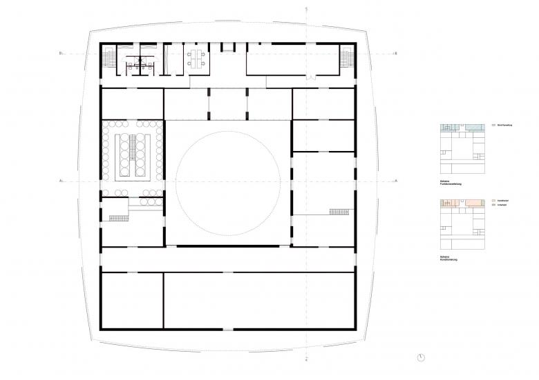
EG
© Architects Collective
1.OG
© Architects Collective
Visualisation © Architects Collective
Visualisation © Architects Collective
Photo © Architects Collective
Photo © Architects Collective
Photo © Architects Collective
Architectes
Architects Collective
Année
2020
Statut du projet+
Construit

Projets liés 

  • Moos
    playze
  • Reiters Reserve Premium Suiten
    BEHF Architects
  • Erweiterung und Instandsetzung Hallenbad Altstetten
    MIYO Visualisierung
  • Neubau von fünf Einfamilienhäusern
    Bäumlin+John AG
  • The Forge in der 105 Sumner Street in London
    Kiefer Klimatechnik GmbH

Magazine 

Autres projets de Architects Collective 

Südspidol
Esch-sur-Alzette, Luxembourg
Kinder- und Jugendklinik Freiburg
Freiburg, Allemagne
Klinikum Klagenfurt
Klagenfurt, Autriche
L-House
Autriche
AT&S VOLT
Autriche