Aufstockung Mitteltrakt Polizeigebäude
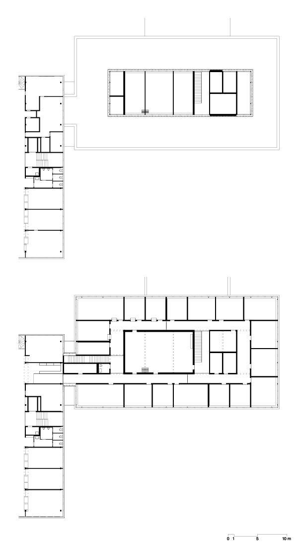
Das Polizeigebäude Foribach ist einer der wenigen typischen Vertreter der 70er Jahre-Architektur im Kanton Obwalden. Die Aufstockung orientiert sich am Bestand und fügt sich nahezu nahtlos in den ausgewogenen Gesamtkomplex ein.
Ein Kranz von Büros für das Sicherheits- und Justizdepartement nimmt die diskreteren Räume des kantonalen Führungsstabes in seine Mitte.
- Architectes
- Beda Dillier
- Année
- 2012
- Statut du projet+
- Construit
- Équipe
- Andreas Egger, Patrizio Welti
- Fotografien
- Dominik Zietlow, Luzern











