"Can Manyer" Library
Carrer Llessami, Vilassar de Dalt, Espagne
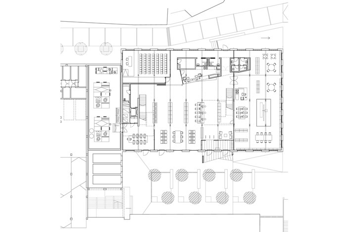
The Library is located in the main building of a textil factory complex of Vilassar de Dalt, that since 1960’s started to decline. The restoration of this magnificent building, is a recuperation exercise the industrial heritage of the town, that looks for a rational, clear and open architecture inside the old factory building. The ground floor, with its cast iron pillars and catalan vaults structure, is a high and pleasant space. From this level, starts two open staircases that arrive to the first floor, even higher, that shows the metal trusses supporting the roof. Is an authentic temple of the Catalan textile industry. The services are wooden boxes covered by themselves without arriving to the ceiling. The general respect towards the space and its origin is touchable all around the building.












