CASAS CUBO Y

Küsnacht, Suisse
Photo © Pierre Kellenberger

1’800 m²

Photo © Pierre Kellenberger
Photo © Pierre Kellenberger
Photo © Pierre Kellenberger
Photo © Pierre Kellenberger
Photo © Pierre Kellenberger
Photo © Pierre Kellenberger
Photo © Pierre Kellenberger
Dachaufsicht
Dessin © Daluz Gonzalez Architekten
Obergeschoss 2
Dessin © Daluz Gonzalez Architekten
Obergeschoss 1
Dessin © Daluz Gonzalez Architekten
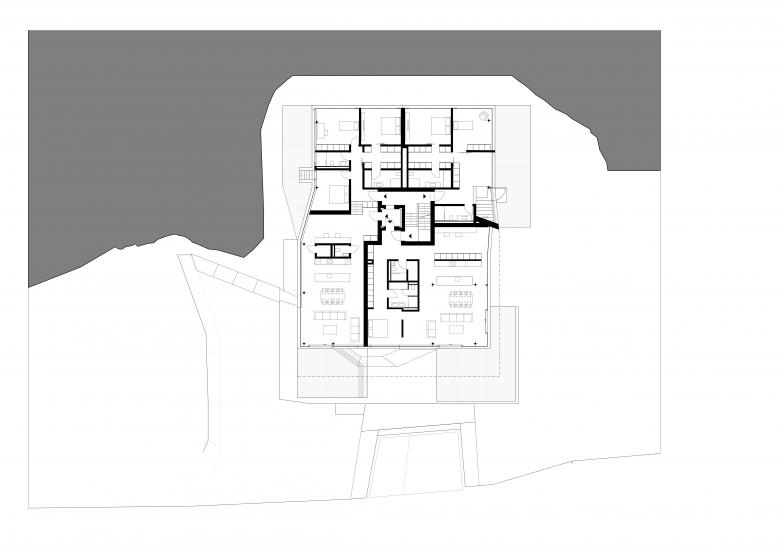
Erdgeschoss
Dessin © Daluz Gonzalez Architekten
Untergeschoss 1
Dessin © Daluz Gonzalez Architekten
Untergeschoss 2
Dessin © Daluz Gonzalez Architekten
Architectes
Daluz Gonzalez Architekten
Année
2021
Statut du projet+
Construit
Client
Weisser Immobilien
Landschaftsarchitekten
Cadrage

Projets liés 

  • Moos
    playze
  • Reiters Reserve Premium Suiten
    BEHF Architects
  • Erweiterung und Instandsetzung Hallenbad Altstetten
    MIYO Visualisierung
  • Neubau von fünf Einfamilienhäusern
    Bäumlin+John AG
  • The Forge in der 105 Sumner Street in London
    Kiefer Klimatechnik GmbH

Magazine 

Autres projets de Daluz Gonzalez Architekten 

CASA SIL
Zürichsee, Suisse