Centrale
Beirut, Liban
The Centrale project is housed in the recuperated ruin of a 1920's residential structure placed under historical protection. It is located in an area that was deserted during the civil war due to its proximity to the demarcation line that separated east and west Beirut. In the vicinity of the site is the Beirut Central District’s historical quarters that have been subject to a general rehabilitation scheme through which the formal features of ottoman, colonial and other various influences were restored to their "original" state.
For the purpose of implementing the required space for the restaurant within the remains of the existing house, the internal partitioning walls of the building and the slab of the first floor level had to be demolished. In the process of voiding out the interior of the existing structure, the outer envelope of the house had to be reinforced by placing horizontal beams that embrace the skin from the outer perimeter of the façade.
Our rehabilitation scheme implements this temporary process in the final configuration of the edifice. The steel beams used in the temporary reinforcement process are preserved. They now imply a new reading of the non-restored façade. Furthermore, we chose not to re-plaster the damaged facade, as it would have been the case in a traditional rehabilitation; and instead, it is covered with a metallic mesh behind which the plaster finishing of the old façade remains in a state of decomposition. The mesh now enhances the poetic dimension of decay.
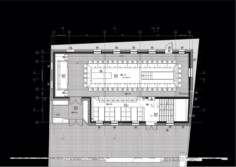
In the double volume of the main hall lies one central table. The service personnel remains trapped inside the table and communicate directly with the kitchen underground through a flight of stairs. Every dish on the table is lit with its own pilot lamp. Such a formal aspect - similar to a general assembly conference table - is further enhanced by the proportions of the high-back chairs that line the table to insure the secrecy of the assembly.
Above the main hall, structural beams inscribe a circular section housing a 17-meter-long bar. The beams also serve as tracks for the rotating movement of the cylindrical envelope of the bar space.
The construction process of the Centrale project relied heavily on the know-how of the local craft industry. Low-tech and non-standard techniques were used particularly in the metal works. This is part of a more general concern we have with the making of architecture. It is a reaction to the prevalent construction industry that relies on standardized modes of production and an attempt to escape the typical process of construction by re-enacting traditional ways of making.





















