Ersatzneubau Mehrfamilienhaus Winterthur
Winterthur, Suisse
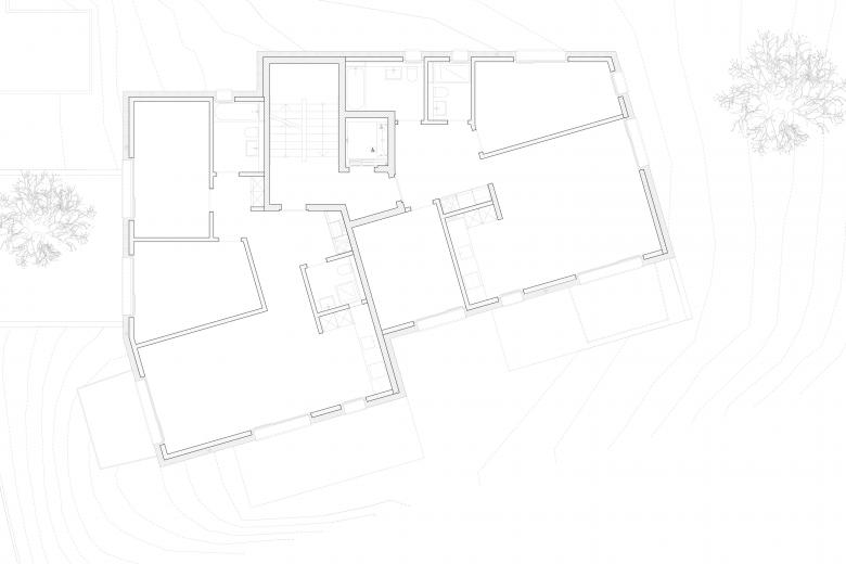
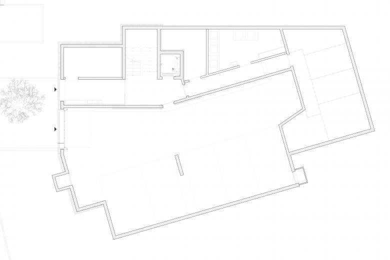
Das Mehrfamilienhaus mit 5 Wohnungen steht im Wohnquartier Wülflingen in Winterthur. An einer Strassenbiegung gelegen gibt der städtebauliche Rahmen die sich zur Strasse weitende Kubatur grossteils vor. In den Wohnungen verbinden grosszügige Entrées die einzelnen Nutzungen miteinander. Die Erscheinung ist auf den ersten Blick sowohl im Inneren als auch von Aussen schlicht und zurückhaltend. Auf den zweiten Blick entstehen durch die Detailierung Tiefe und ein einheitliches Bild.
- Architectes
- Mireya Heredero Architekten GmbH
- Année
- 2016
- Statut du projet+
- Construit
- Client
- Appart AG
Projets liés
Magazine
-
-
Bâtiment de la semaine
The Three-Body Problem: Trapped in a Wave Sandwich
Eduard Kögel, Scenic Architecture Office | 13.04.2026 -




















