Erweiterung EFH Frey
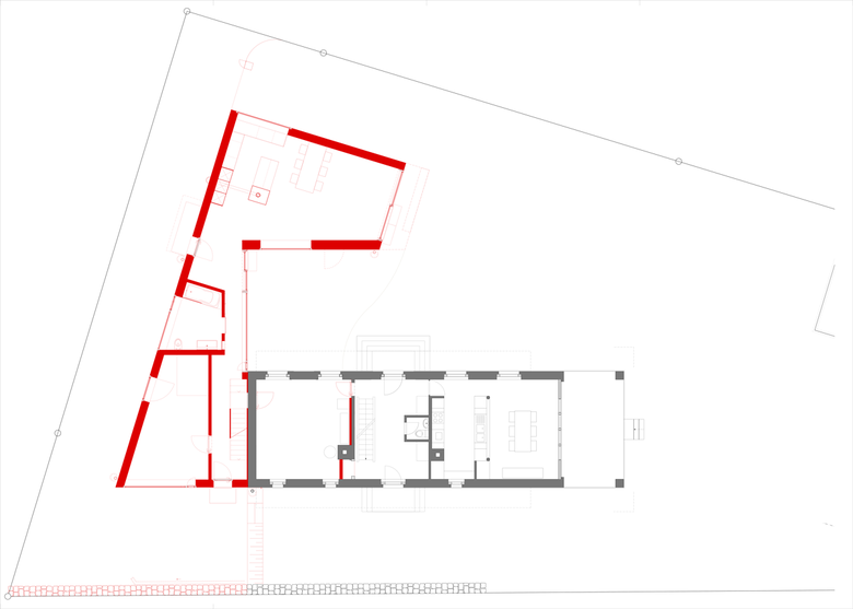
Anstelle des Schopfes bildet der neue Hausteil einen
geborgenen, nach Süden offenen Hof. Die erweiterte
Anlage beherbergt in zwei autonomen Wohnungen mit
je zwei Geschossen - der Anbau hat ein Schlafzimmer
mit Balkon im Obergeschoss - und einem gemeinsam
nutzbaren Zimmer drei Generationen. Die räumliche
Verdichtung geht einher mit einer sozialen Entwicklung
wie im Lerchenfeld in Meggen, hier jedoch im
familiären Kreis.
- Architectes
- Lauber Maier Architekten AG / ETH FH SIA
- Année
- 2009
- Statut du projet+
- Construit
- Client
- Privat
- Équipe
- Avorplan GmbH, Ingenieurbüro ZEO AG, W&P Engineering
Projets liés
Magazine
-
-
-
Bâtiment de la semaine
The Three-Body Problem: Trapped in a Wave Sandwich
Eduard Kögel, Scenic Architecture Office | 13.04.2026











