Feuerwehrzentrum Köln - Kalk
Gummersbacher Straße 33, Köln, Allemagne
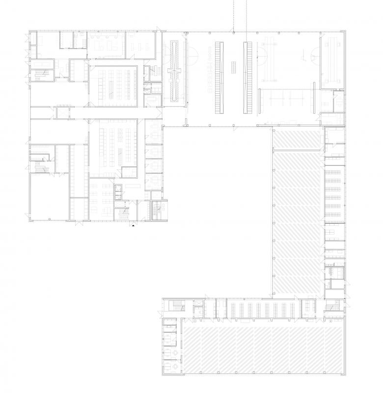
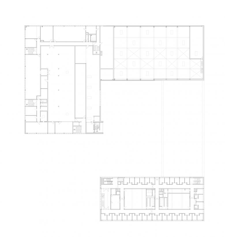
Auf einem brachliegenden Gewerbegrundstück im Gleisdreieck von Köln - Kalk wurde die Hauptrettungswache der Stadt errichtet. Enthalten sind neben Fahrzeughallen für insgesamt 18 Feuerwehr- und Rettungsfahrzeuge auch die Werkstätten für Einsatzmaterialen und -geräte aller Kölner Feuerwachen, die zentrale Warenausgabe, Fahrzeugwerkstätten und Räume für die freiwillige Feuerwehr. Das Hauptgebäude an der Gummersbacher Straße weist außerdem Ruhe- und Aufenthaltsbereiche, Küche und Speiserau sowie eine Sporthalle auf.
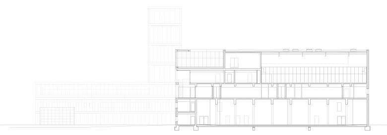
Gestaltungsziel ist der gestalterische Zusammenhalt des Ensembles durch die ruhige Anordnung strukturierter Fassaden und eine Gebäudekubatur, die sich gleichermaßen aus der Umgebung und aus der Funktionalität heraus entwickelt. Es entsteht ein räumlich – bauliches Kontinuum, das durch die horizontale Gliederung der differenziert reliefierten Metallfassaden wirkungsvoll inszeniert wird.
Die Fassadenbekleidung aus feuerverzinkten Stahlblechtafeln wurde klassisch als vorgehängte, hinterlüftete Fassade konzipiert. Aufgrund intensiver Hinterfragung und Weiterentwicklung der Konstruktionsdetails konnte am Ende eine sehr kostengünstige Konstruktion umgesetzt werden. Nur punktuell an der massiven Außenwand montierte Einzelhalter als L- oder T-Profile durchdringen die 16 cm starke Dämmebene. Die Halter wurden zudem durch hoch gedämmte Zwischenlagen thermisch entkoppelt, dadurch wurde die Anzahl der konstruktiven Kältebrücken wirksam minimiert. Als Befestigungsgrund der Fassadenbekleidung dienen vertikal durchlaufende Aluminiumprofile, die vor der Dämmebene an den Einzelhaltern montiert sind.
Wesentliches Gestaltungsmerkmal der Fassade sind die geschossweise in unterschiedlichen Achsabständen montierten, vertikalen Lisenen. Dabei handelt es sich um eloxierte Aluminium-Rechteckprofile, die jeweils auf Höhe der Geschossdecken abgesetzt sind und die Geschosse des Baukörpers abbilden. Zwischen diesen Lisenen wurden die Fassadentafeln montiert.
Diese Fassadentafeln sind 3 mm starke, glatte Stahlbleche mit feuerverzinkter Oberfläche. Aus korrosionsschutztechnischen und optischen Gründen wurden Stahlbleche der der Kategorie B gem. DIN EN ISO 14713-2mit einem Silicium Gewichtsanteil zwischen 0,14 und 0,25 % (Sebisty-Bereich) verwendet. Aufgrund der Nähe zu einer elektrifizierten, stark frequentierten Eisenbahntrasse wurde die Verzinkung gemäß Korrosivitätskategorie C4 mit einer Mindestzinkstärke von 85 µm ausgeführt.
Die Bleche sind jeweils geschosshoch und ohne Ausnahme als Glattbleche ohne Abkantungen ausgeführt. Um die feuerverzinkte Oberfläche bei der Montage nicht zu beschädigen, wurden alle Bohrungen vor dem Verzinken ausgeführt und die Bleche später mittels Rohrschrauben in der Alu-Unterkonstruktion befestigt.
Auch die Aufhängeschlaufen zum Eintauchen in das Zinkbad wurden in einer dieser Bohrungen an der Ecke befestigt, so dass das abfließende Zink schräg über die Blechtafeln lief und ein sehr charakteristisches Fassadenbild, mit unterschiedlichen Winkeln je nach Blechbreite, erzeugt. Insgesamt wurden alle Herstellungsspuren, die technologisch durch den Verzinkungsprozess entstehen, ohne Nachbehandlung in die Gestaltung integriert, dazu zählen auch unterschiedliche Zinkbilder, Glanzgrade und Fehlstellen.
So konnte eine Fassade realisiert werden, in der die herstellungsbedingten Oberflächen der verzinkten Stahlblechtafeln kompromisslos in die Fassadengestaltung übernommen wurde.
























