Five Hundred Wellington
Wellington Street West, Toronto, Canada
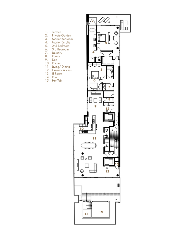
Conceived and designed to fill an high-end niche in the downtown King West District, these ultra-luxurious penthouse-sized loft suites provide for half-floor suites and full-floor units, each with a cabana terrace. Building features high-end finishes and kitchens, gas fireplaces, and additional terrace amenities and services. The challenge was to insert a very high quality, exclusive condominium on a narrow, long infill site in a predominately warehouse district. The 10 storey building contains only 17 suites, which are either half floor or full floor occupancy, served by separate elevators that enter directly into the suites. A major design directive was to provide substantial outdoor living spaces on terraces and decks, with floor to ceiling glazing where possible. The exterior materials palette was kept simple and elegant, the brick was a charcoal ironspot, the soffits were Ipe, black zinc was used as flashings and metal panel, balcony guardrails were frameless, tempered glass and the exterior glazing was flush, silicon glazed where applicable. The interior layouts, also prepared by the CORE, are spacious and uncluttered and emphasize the feeling of a “luxury of space”. The overall effect is a condo that engages the street with a playful facade on Wellington and that also fits in well with the massing and materials of the warehouse district.














