Fondation Françoise Siegfried Meier
Chemin de La Becque 1, La Tour-de-Peilz, Suisse
A silent architecture to elevate arts.
On the shore of Lake Geneva, the Françoise Siegfried Meier Foundation welcomes artists in residence.
Ms. Siegfried, who died in 2013, dedicated a familial plot in La Tour-de-Peilz to the passions of her life: classical music and interdisciplinary artistic exchanges.
The entrance of the artistic campus is on the north side along the two largest pavilions. Common spaces are located in the first building. On the ground floor they are four high-celling workshop studios. On the second floor is located a living room dressed in a solid oak bookcase and a fireplace which gives this space a domestic atmosphere. A meeting room completes this first pavilion entirely dedicated to reception, creation and practice. The second building is composed of two apartments and three host rooms.
These two first pavilions have a classical interior composition whereas the outer envelope offers a discreet tribute to the founder: a graphic transcription of the rhythm from “Death and the Maiden” of Schubert, favorite musical opus of Ms. Siegfried Meier.
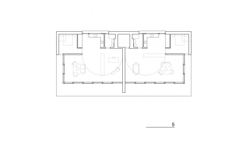
The south part of the property hosts four independent pavilions including two apartments each. The buildings are only slightly elevated above the garden and the generous bay windows blur the sill in between inside and outside. Sliding wooden shutters soften natural light and allow to frame individually neighborhood and landscape.
The topographic implantation of the pavilions, their compactness, their formal sobriety, their fluctuant mobility between interiority and opening and the landscape work invite to serenity and creativity. Architecture serves arts.


















