FUL-HOUSE (Future Urban Live - House)

Photo © Rupert Steiner

FUL-HOUSE (Future Urban Live – House)

Sustainable Architecture for the Viennese Suburb of Simmering

CITY IN THE HOUSE project for 300 apartments

This project was developed for the exhibition EMERGING ARCHITECTURE, organized by the Architecture Centre, Vienna in September 2000.

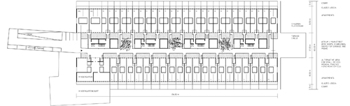
The FUL-HOUSE (Future Urban Live – House) project is a dwelling structure with 300 apartments, situated in the Viennese suburb of Simmering, a field of heterogeneous character, without any urban cohesion and without many public spaces and infrastructure. The flat area of Simmering with its green fields, with the extended glasshouses, and the factory chimneys in background, radiate a unique poetic impression. Here, as in many other periphery areas, the new build dwellings have no chance to be really urbanised in the next future. Our proposition for this place is a converse solution: CITY IN THE HOUSE. Outside remains the unchanged poetic landscape, inside, between two compressed, long-stretched residential blocks for the inhabitants arises the possibility to find public space, communication and urban comfort in their own house. This glass-covered middle zone, named Atrium or Main Street, contents different small shops, a kinder garden, small offices and cabinets for medical practices, places for seating and communication, depots for kinder prams and waste. The internal street is accessible only for cars of ambulance, waste transportation, stock supplies for the shops, and taxi-cars for handicapped people or fire brigade vehicles. Along the Atrium are situated also the four staircases and elevators.

This vital, interactive internal space determines the structure of the apartments. They are planned as compact, 18-meter deep volumes, stretched between the Atrium and the green space outside. The loft-like arrangement of the flats, with only one closed service unit, freely situated in the middle, allows views through the whole tract. The planning of the apartments is here a question not only of functional arrangement of rooms, but much more of determining the zones for intensive, communicative activities (cooking, eating, sitting together with the family or with guests) oriented to the atrium, and for privacy (sleeping, reading, working in seclusion or contemplation of the nature), oriented to the greenery outside. For the construction is considered the use of big format prefabricated concrete elements. The four parallel longitudinal veerandel beams with the height of one floor and distance between the columns of 1,4 m allows avoiding the fix supporting walls between the flats. In this way it is easy to put apartments together, or to separate them in each modular dimension. This makes the arrangements very flexible, very transformable. Space for home offices and small business could be gained easily.

Special attention in this project is given to ECOLOGY and ECONOMY. Both aspects are closely tied in this project. The compactness of the building and the deepness of the tract reduce the length of the inner ways, stairs and elevators and the area of the outside surface, thus preventing the loss of energy. At the same time it leaves larger amounts of the green areas free and undivided.

The glass covering of the loggia and the Atrium permits the use of passive sun energy during the severe Austrian winter. Cooling effect in summer is achieved by creating cross natural ventilation, when the glass surfaces are opened. The need of hot water can be satisfied by sun-collectors, situated on the flat roof which area is enough 

Hot water can be supplied by sun collectors, situated on the flat roof. The area is enough for meeting the needs of the whole building.

The consequent arrangement of the service-units in the centre of the apartments allows the use of combined central waste-heat recovery system for heating and cooling.

The project, with its flexible architectonic structure planned as an autonomic sustainable unit, is prepared to meet the potential needs of the future development.

Photo © Rupert Steiner
Photo © Rupert Steiner
Photo © Rupert Steiner
Architectes
Bulant & Wailzer
Année
2000
Statut du projet+
Construit

Projets liés 

  • Gymnasium Schulstraße
    Kronaus Mitterer Architekten
  • GROHE Water Experience Center
    D’art Design Gruppe GmbH
  • Limmatquai 4
    Kästli Storen
  • Volksschule Erlaaer Schleife
    Kronaus Mitterer Architekten
  • Ortsdurchfahrt Domat/Ems
    Luminum GmbH

Magazine 

Autres projets de Bulant & Wailzer 

ONE WALL HOUSE
Villa Mallorca
PENTHOUSE P.
St. Valentin, Autriche
GREEN OVER GREY, WASTE INCINERATION AND BIO-GAS PRODUCING PLANT
Vienna, Autriche
Conversion and Extension of Sailer House
Salzburg, Autriche
SKYWALK
Wien, Autriche