Hafele Showroom
Shanghai, China
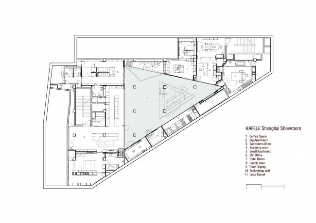
The complex and huge amount of Hafele products called for a strong concept. We wanted to create a world of surprise and simplicity, a space where your mind doesn’t get overwhelmed .A space where the experience of the visitor is essential and the exploration of the Hafele brand can be controlled and revealed at a pace of choice. The showroom functions like a treasure box. An empty calm space that slowly exposes it secrets.
Located under their shanghai office; the space had a huge skylight which indicated the perfect place for entering the showroom. This spot, now marked by an 8m tall glass entrance tower, welcomes you. The white steel staircase leads you downstairs to the showroom and connects to the roof terrace above the offices. At the same time the glass tower functions as a very clear landmark for the hafele brand.
The staircase, a strong white steel element, touches down on a podium in an empty space. This area doesn‘t give any indication of all the hidden spaces that lie beyond the grey wood paneled walls. But it will slowly open it secret doors to show you the world of Hafele. Here the exploration of Hafele starts. Opening the different door systems to the hidden spaces. A 35m2 apartment, a 150m2 apartment, a hotel room, a VIP office, bathroom area and technical areas, all diversly designed spaces in itself, reveal the eclectic and vast product range of Hafele. Being able to control when to open certain spaces and what products are visible makes seeing them all the more surprising.
- Architectes d'Intérieur
- AIM ARCHITECTURE
- Année
- 2014
- Statut du projet+
- Construit













