Haus B in O
O, Allemagne
Die Geschichte zu diesem Projekt begann so, wie man sie sich als Architekt nicht schöner wünschen kann: Völlig unvermittelt stand ein Bauherr vor der Tür, der das gerade geerbte Haus von uns umbauen lassen wollte. Wir bekamen einen Ordner mit Bestandplänen in die Hand gedrückt, machten einen gemeinsamen Ortstermin und sollten uns überlegen, was man aus dem Haus machen könne.
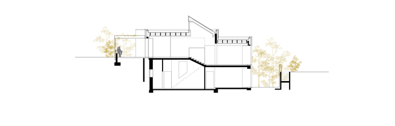
Wir trafen auf einen klassischen Bungalow in Hanglage aus den 70iger Jahren, eine durchdachte und abwechslungsreiche Grundstruktur aus Mauerwerks- und versetzt angeordneten Deckenscheiben. Dieses Gefüge war jedoch durch zahlreiche Einbauten überformt und seiner vermutlich ursprünglichen Klarheit und Leichtigkeit beraubt. Insgesamt wirkte das Haus ein bißchen aus der Zeit gefallen, kühl und düster.
Sollte es zunächst noch um Reparaturen und eher kleine Eingriffe gehen, entwickelte sich im Dialog mit dem Bauherrn ein weit über die ursprünglichen Absichten hinausgehendes Umbaukonzept:
Kellerräume wurden zum Garten geöffnet; horizontale Sichtverbindungen durch das Haus in Ost/West- und Nord/Südrichtung geschaffen; vertikale Sichtbeziehungen zwischen den Ebenen hergestellt; helle Materialien eingesetzt; Übergänge zwischen den Bauteilen durch Schattenfugen akzentuiert; Fensteranlagen ausgetauscht; Dach, Wände und Böden gedämmt; Haustechnik erneuert und die Gartenanlagen zu korrespondierenden Außenräumen umgestaltet.
Am Ende steht ein die Idee des Loos'schen »Raumplanes« aufgreifendes, dreidimensional wirksames, helles und freundliches Raumgefüge, das die Gartenanlagen großzügig mit einbezieht.
- Architectes
- lüderwaldt architekten
- Année
- 2013
- Statut du projet+
- Construit
- Équipe
- Christina Enke






















