Haus im Burggarten – Wohnpflegeheim

Im Burggarten, Breitenbach am Herzberg, Allemagne
© Thomas Ott Fotografie

Wohnpflegeheims zur vollstationären Versorgung von pflegebedürftigen Menschen mit psychischen Erkrankungen und/oder seelischer Behinderung und/oder Abhängigkeitserkrankungen in Verbindung mit Comorbidität, die darüber hinaus schwer körperbehindert sein können.

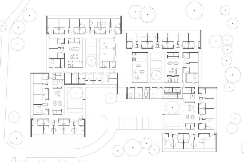
„Haus statt Heim“ - Ein Wohnort für die pflegebedürftigen Bewohner, der den Grundsätzen von Individualität, Normalität und Autonomie entspricht und sich im besten Sinne der Inklusion in die Nachbarschaft einfügt. Dies wird durch eine pavillonartige Gesamtstruktur aus vier erdgeschossigen, um eine Mitte gruppierte Atriumhäuser umgesetzt. Kein Aufzug, keine Treppe - dies ermöglicht auch den in Ihrer Mobilität eingeschränkten Bewohnern einen gleichberechtigten Zugang in die verschiedenen Bereiche und in den Freiraum.

© Thomas Ott Fotografie
© Thomas Ott Fotografie
© Thomas Ott Fotografie
© Thomas Ott Fotografie
© Thomas Ott Fotografie
© Thomas Ott Fotografie
© Thomas Ott Fotografie
© Thomas Ott Fotografie
© Thomas Ott Fotografie
© Thomas Ott Fotografie
© Thomas Ott Fotografie
© Thomas Ott Fotografie
© Thomas Ott Fotografie
© Thomas Ott Fotografie
© Thomas Ott Fotografie
© Thomas Ott Fotografie
© Thomas Ott Fotografie
© Waechter + Waechter Architekten
© Waechter + Waechter Architekten BDA
© Waechter + Waechter Architekten BDA
Architectes
Waechter + Waechter Architekten
Année
2014
Statut du projet+
Construit
Client
Hephata Hessisches Diakoniezentrum e.V.
Wettbewerb
2006 - 1. Preis
Winner Architecture Domestic
2015, ICONIC AWARDS
Besondere Anerkennung
2017, Vorbildliche Bauten im Land Hessen
Auszeichnung
2018, BDA Hessen, Simon-Louis-du-Ry-Plakette

Projets liés 

  • Moos
    playze
  • Reiters Reserve Premium Suiten
    BEHF Architects
  • Erweiterung und Instandsetzung Hallenbad Altstetten
    MIYO Visualisierung
  • Neubau von fünf Einfamilienhäusern
    Bäumlin+John AG
  • The Forge in der 105 Sumner Street in London
    Kiefer Klimatechnik GmbH

Magazine 

Autres projets de Waechter + Waechter Architekten 

Neubau Bildungszentrum IHK Ulm
Ulm, Allemagne
Sanierung der Walhalla Wiesbaden
Wiesbaden, Allemagne
Villa Hindenburgstraße
Darmstadt, Allemagne
Michaelisgemeinde Frankfurt
Frankfurt, Allemagne
Kultur- und Konzerthaus Heidelberg
Heidelberg, Allemagne