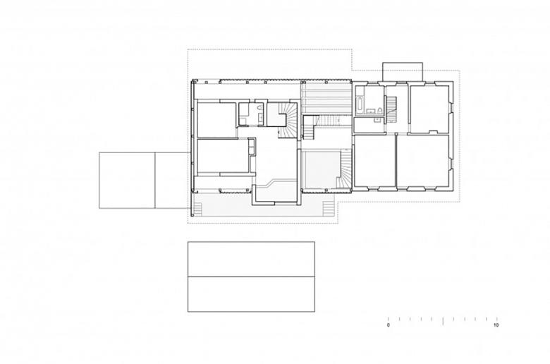
Haus K Dättlikon
Dättlkon, Suisse
Ausbau Scheune
- Architectes
- Coon Architektur
- Année
- 2021
- Statut du projet+
- Construit
Projets liés
Magazine
-
Bâtiment de la semaine
The Three-Body Problem: Trapped in a Wave Sandwich
Eduard Kögel, Scenic Architecture Office | 13.04.2026 -
-









