Instandsetzung Schulhaus Bläsi
Zürich (ZH), Suisse
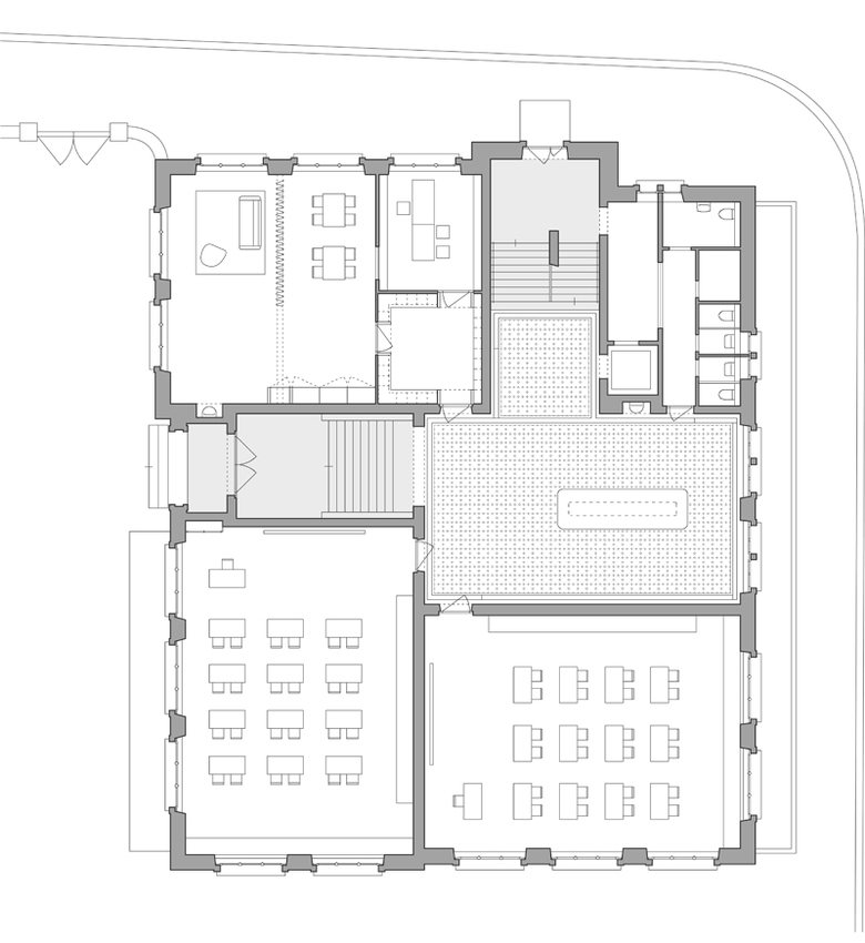
Das Schulhaus Bläsi liegt am Rand des Dorfkerns von Höngg und wurde 1907 vom Architekten Otto Schröder als typischer Heimatstilbau der ersten Stunde erstellt. Charakteristisch für das Gebäude sind die unterschiedlich gestalteten Fassaden mit subtil auf die ursprünglichen Aussenräume bezogenen Risalite mit grosszügigen Fensteröffnungen. Im Inneren wurde bewusst eine asymmetrische Grundrissorganisation mit lose gruppierten Zimmern und Nebenräumen um die Hallen angestrebt. Grosszügige Raumdimensionen und zahlreiche Fragmente einer zeitgemässen Materialästhetik an Bauteilen und Oberflächen, lassen einen reichhaltigen Ursprungszustand erkennen.
Die architektonischen Eingriffe haben zum Ziel den noch spürbaren, ursprünglichen Heimatstilcharakter räumlich und atmosphärisch zu stärken. Die typologisch störende und strukturfremde Bausubstanz wird angemessen auf einen ursprungsähnlichen Zustand zurückgebaut. Intakt vorgefundene Bauteile, welche im erweiterten Sinn zum «gewachsenen Originalbestand» gehören, werden beibehalten, freigelegt oder ergänzt und zu einem kohärenten neuen Ganzen zusammengeführt. Die neu gewählten Materialien und Farbigkeiten bilden einen weichen, kontrastarmen Hintergrund für die satten, materialspezifischen Farben von bestehenden, originalen Oberflächen und Bauteilen. Das Resultat ist ein wiedergefundener, harmonischer Farb- und Materialkanon aus dem Bestand und den ergänzenden Bauteilen.
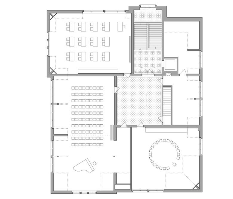
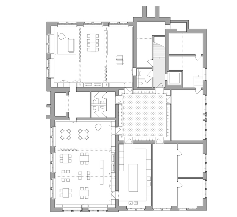
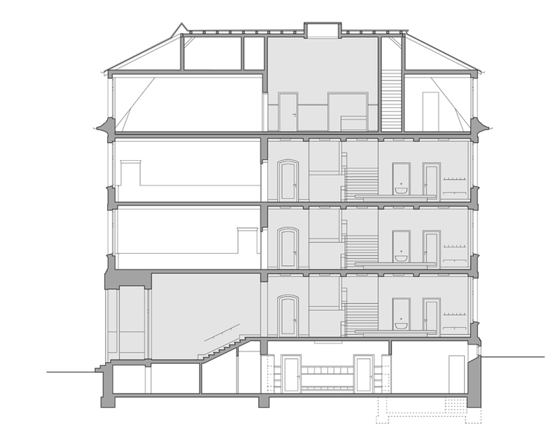
Räumliche Veränderungen erfolgen nur in wenigen, wesentlichen Bereichen des Gebäudes. Im Dachgeschoss wird die Halle zum Treppenhaus abgeschlossen, bis unter das Dach geöffnet und .zenital belichtet. So entsteht ein eigenständiger Foyerraum als Abschluss der Erschliessungsabfolge und als festlicher Auftakt zu den Musikräumen.
Im Tiefparterre kann der Hort mit prägnanten, raumstrukturellen Korrekturen grosszügig eingerichtet und betrieben werden. Auch hier ist die Halle übersichtlich gross, sammelt und verteilt die Kinder und ist Ausgangspunkt für die unmittelbar angrenzenden Räume. Jeder Aufenthaltsraum ist mit einer verschieden raumhaltigen Wandschale gefasst, in der gebäudetechnische Installationen aufgenommen und vielseitigen Nutzungsbedürfnissen entsprochen werden kann.
- Architectes
- nik biedermann architekten gmbh
- Année
- 2011
- Statut du projet+
- Design
- Programm
- Primarschulhaus mit Hort / Musikschule
- Auslober
- Stadt Zürich, Amt für Hochbauten
- Architekten
- nik biedermann architekt
- Baumanagement
- Sarcelle AG, Oskar Berger
- Gebäudekosten BKP 1-9
- ca. Fr. 11.5 Mio.
- Planerwahlverfahrent
- selektiv: 2011, ohne Rang
Projets liés
Magazine
-
-
Bâtiment de la semaine
The Three-Body Problem: Trapped in a Wave Sandwich
Eduard Kögel, Scenic Architecture Office | 13.04.2026 -












