Invited Competition, New Housing Complex Zypressenstrasse, Winterthur
Winterthur
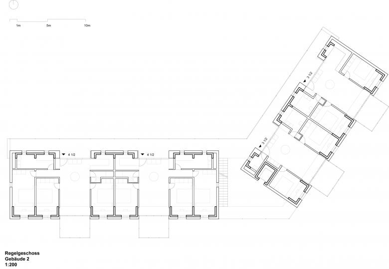
Program
Study commission replacement building Zypressenstrasse, Winterthur
PROGRAM:
37 flats
CLIENT:
Foundation for Art, Culture and History (SKKG) Winterthur
LOCATION:
Zypressenstrasse 22-28, Winterthur
AREA:
Site area: 4,510 sqm
Building mass index 2.53
Floor area above ground:
3'091 sqm
Floor area underground:
1'245 sqm
prequalification
ARCHITECT:
ARGE
Gus Wüstemann architects AG/ Hauenstein La Roche Schedler architects AG
PLANNING TEAM:
alsina fernandez landscape architecture BSLA
VISUALISATION:
Filippo Bolognese
- Architectes
- gus wüstemann architects AG
- Année
- 2021
- Statut du projet+
- En construction









