Kantonsschule Im Lee
Rychenbergstrasse 140, Winterthur, Suisse
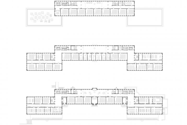
Gesamtinstandsetzung Kantonsschule Im Lee Winterthur (Kantonales Denkmalschutzobjekt) – Die Gestaltungsprinzipien der Gebrüder Pfister beziehen sich auf einen regionalen Klassizismus abseits der Moderne, im Fall der Kantonsschule Im Lee mit einer starken Gewichtung der Repräsentation. Der Bauzeit (1927) entsprechend, wird mit Raumfolgen von engen zu weiten Räumen Spannung erzeugt. Eine Abfolge von „Wegen und Plätzen“ mit Niveauunterschieden charakterisiert die innere Erschliessungsstruktur des Gebäudes und eröffnet immer wieder neue Sichtbezüge. Bemerkenswert ist die flexible Raumstruktur in der Klassenzimmerschicht. Die Wahl der Baumaterialien ist pragmatisch auf deren Dauerhaftigkeit und geringen Unterhalt angelegt.
Die Schule wurde den heutigen Bedürfnissen angepasst, und die ursprüngliche Stimmigkeit der Architektur der Erbauer ist wiederhergestellt. Das Dach wurde für den Musikunterricht ausgebaut und die Dachkonstruktion im Bereich der Säle an die grossen Spannweiten angepasst. Für die natürliche Belichtung wurden zusätzliche Lukarnen, dem Original entsprechend, eingebaut. Die Erschliessungszonen sind für Gruppennutzung aktiviert und den Brandschutzanforderungen angepasst. Der Fassadenputz wurde nach einer Risssanierung des Mauerwerks instand gesetzt, ebenso die Gewände, Gurten und Simse in Naturstein. Die Holzfenster sind ersetzt und das Sprossenbild sowie die Beschläge vom Originalfenster übernommen.
Die Haustechnikanlagen sind dem heutigen Standard angepasst. Die ganze Schulanlage konnte an das Fernwärmenetz angeschlossen werden.
- Architectes
- MSA Meletta Strebel Architekten AG
- Année
- 2022
- Statut du projet+
- Construit
- Client
- Baudirektion Kanton Zürich Hochbauamt
- Landschaftsarchitektur
- Krebs und Herde
- Bauingenieur
- Synaxis AG
- Elektroingenieur
- Marquart Elektroplanung + Beratung
- HLKS
- RMB Engineering AG
- Kunst am Bau
- Esther Mathis


















