Kinderbetreuungszentrum Maria Enzersdorf
Liechtensteinstraße, Maria Enzersdorf, Autriche
Zuzug und die steigende Geburtenrate in der südlich von Wien gelegenen Gemeinde erforderten die Schaffung von mehr und vor allem zeitgemäßen Kinderbetreuungseinrichtungen. 2008 wurde daher ein geladener Wettbewerb für ein neues Kinderbetreuungszentrum ausgelobt, welches die bestehende Gründerzeitschule um acht Volksschulklassen, einen Kinderhort und einen Kindergarten mit Küche erweitert.
Die Architektenarbeitsgemeinschaft MAGK illiz konnte den Wettbewerb für sich entscheiden.
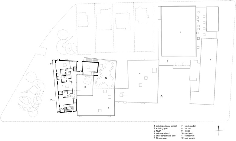
Der Entwurf der Arbeitsgemeinschaft MAGK illiz bricht das Bauvolumen in L-förmige Körper, die so ineinander verschachtelt sind, dass in den Zwischenräumen unterschiedliche Orte und Freiräume zum Spielen und Lernen gebildet werden.
Innerhalb des zweigeschossigen Ensembles ermöglicht eine einfache Wegführung zwischen den Funktionsbereichen eine gute Orientierbarkeit und schnelle Wege für Kinder und Erwachsene.
Der neue Haupteingang der Schule ist gleichzeitig Aula und verbindet das Bestandsschulhaus mit dem Neubau. Die Fassade ist als „gepixelte“ weiße Hülle entwickelt. Format und Fügemuster der „Fensterpixel“ entsprechen der jeweiligen Nutzung, wodurch die dahinterliegenden Räume von außen ablesbar werden und der Wiedererkennungswert der einzelnen Gebäudeteile verstärkt wird. Die Fassadenflächen sind abwechselnd glatt und grob verputzt, was besonders bei Streiflicht einen stark plastischen Eindruck entstehen lässt.
Im Gegensatz zur kontrastreichen Fassade, wird die Gestaltung der Innenräume durch variierende, feinabgestimmte Farb- und Materialkombinationen geprägt.
Die unterschiedliche Gestaltung von Türen, Garderoben und Wandpaneelen in einem eigenen Farbspektrum je Funktionsbereich erleichtert vor allem den Kindern die Orientierung und erhöht die Identifikation. Die Garderoben der Kindergruppen sind mit Holz verkleidet und winden sich wie Schneckenhäuser zu privaten Nischen.
In die Gänge und aus der Fassade heraus ragen „Pixel“, die von den Kindern wie Nester zum Lesen und Kuscheln genutzt werden.
Alle Funktionsbereiche verfügen über Grün- und Freiflächen. Der Pausenhof faltet sich durch den grell orangen Gummibelag zu einer Kletter- und Spiellandschaft, die Dachterrasse mit der eben betonierten Oberfläche wird zur Rennstrecke. Hort und Kindergarten bilden einen gemeinsamen ein- bis zweigeschossigen Innenhof, der umgeben von Spielfluren, Mehrzweck - und Bewegungsräumen ein beruhigtes Zentrum ist. Die farbigen Tür- und Lüftungselemente der raumhohen Glasfassade lassen bei geöffnetem Zustand einen flexibel nutzbaren Veranstaltungsraum entstehen. Den Gruppenräumen des Kindergartens vorgelagert, orientiert sich westseitig eine zweigeschossige Loggia aus einem Vorhang von weiß beschichteten Schweißrosten und farbigen Glasscheiben. Er vervollständigt den monolithischen Charakter der Gebäude und dient als Sonnenschutz und Absturzsicherung. Je nach Blickwinkel wirkt die Fassade transparent bis geschlossen, von Innen hinaus jedoch verkörpert sie eine schützende zweite Hülle, die den kleinsten Kindern Blicke ins Grüne freigibt und bunte Lichttupfen in den Raum zaubert.
Das Material- und Konstruktionskonzept zeichnet sich durch einen hohen Anspruch an ökologische Nachhaltigkeit aus. Um eine rasche Bauzeit zu gewährleisten, wurde der Neubau in Mischbauweise, mit massivem Innenkern als Speichermasse und einer vorgefertigten, hochgedämmten Hülle in Holzständerbau- bzw. Massivholzplattenbauweise errichtet.
Der gesamt Neubau entspricht dem Passivhausstandard. Ziel war es höchste Behaglichkeit bei geringsten Betriebskosten zu erreichen. Ein innovatives Lüftungskonzept ermöglicht eine Kostenminimierung hinsichtlich Laufzeiten der mechanischen Lüftung. Dafür werden über Akustikschlitz-Öffnungen die Klassen und Gruppenräume über die Gangzonen quergelüftet, ohne dass Schallübertragungen vom Gang zu den Klassenräumen zustande kommen. Dieses Konzept gewährleistet auch eine technisch einfache Vorbeugung der sommerlichen Überhitzung durch Nachtabsenkung. Mit Hilfe der effizienten Kostensteuerung konnte aus dem vorhandenen Gesamtbudget auch der bestehende Turnsaal im Rahmen der Erweiterung thermisch saniert werden. Zusätzlich wurden die umlaufenden Lichtbänder erneuert und allseitig mit horizontalen, teilweise beweglichen Sonnenschutzlamellen versehen.
Das Kinderbetreuungszentrum von MAGK illiz zeichnet sich durch einen besonders sensiblen Umgang mit der gewachsenen, kleinmaßstäblichen Struktur der Umgebung aus. Die gebrochenen Bauvolumen sind so ineinander geschachtelt, dass sie nicht mit der Umgebung konkurrieren.
Gemeinsam mit den Klassen im Bestand bilden die neue Volksschule, der Hort und der Kindergarten nach knapp drei Jahren Planungs- und Bauzeit eines der größten Kinderbetreuungszentren Niederösterreichs.
- Architectes
- illiz architektur
- Année
- 2011
- Statut du projet+
- Construit
Projets liés
Magazine
-
-
Bâtiment de la semaine
The Three-Body Problem: Trapped in a Wave Sandwich
Eduard Kögel, Scenic Architecture Office | 13.04.2026 -














