Kindergarten Wandlitz
Wandlitz, Allemagne
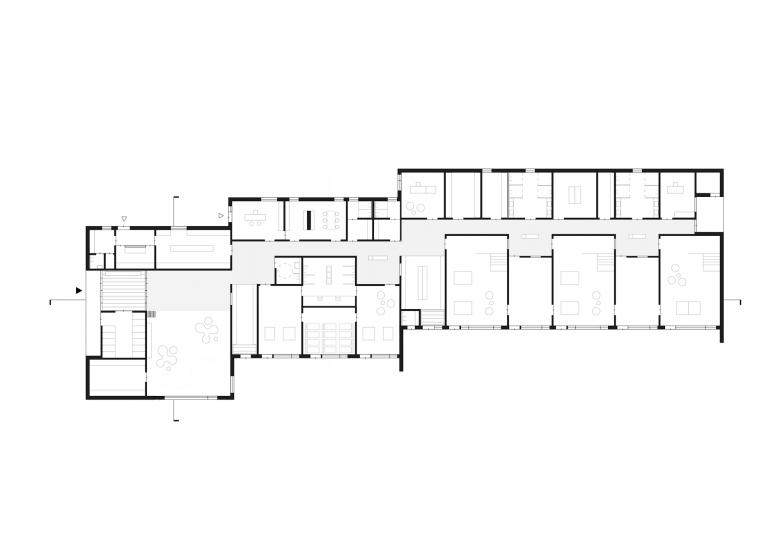
Der längliche, eingeschossige Baukörper der Kita teilt sich dabei entsprechend seiner hauptsächlichen Funktionen - Gemeinschaftsräume, Krippenräume, Kitaräume – in drei Teile. Durch diese Staffelung entwickelt die Kita vor allem strassenseitig einen zurückhaltenden, aber selbstbewussten Charakter.
Am Eingang weitet sich zunächst das Foyer zu einer einladenden Gemeinschaftsfläche. Im weiteren Verlauf des Spielwegs sind vor jedem Gruppenraum kleine Vorplätze angeordnet, die durch Oberlichter erhellt zusätzliche Spielbereiche bieten. Der Spielweg selbst endet mit einem Ausblick auf die vielleicht größte Qualität des neuen Standortes, den Naturpark.
- Architectes
- MTTR Architekten + Stadtplaner
- Année
- 2021
- Statut du projet+
- En construction
- Équipe
- André Schmidt, Joris Fach, Bilyana Asenova, Saša Ciabatti
- Architektur
- MTTR Architekten und Stadtplaner & unas studio









