Collège «la Planchette», 1er prix
Chemin de la Planchette, Aigle, Suisse
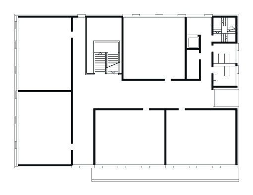
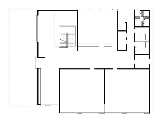
Dans la vallée du Rhône, le bâtiment est conçu comme une sorte de sculpture, posé sur un sol parfaitement horizontal en raison de la présence en sous-sol d’un abri anti-atomique de la Protection civile suisse. Il s’agit d’un prisme pur, auquel on a enlevé des parties: au sud pour créer un préau couvert, au nord pour ouvrir la distribution intérieure vers les montagnes. A l’est, on a sorti un «tiroir» pour accueillir les deux salles enfantines.
Le plan dispose des volumes intérieurs de béton brut, composés de manière un peu aléatoire pour mieux jouer avec la lumière naturelle. Les espaces communs se trouvent entre ces surfaces abstraites qui entourent chacune des classes. L’escalier principal devient le point de référence spatiale du parcours.
D’un point de vue structurel, les murs en béton sont porteurs et sont conçus comme étant des «poutres-voiles». A l’intérieur, tous les panneaux de coffrage ont été dessinés afin de faire coïncider les joints entre eux, sur les murs et les plafonds. Les portes d’accès aux classes sont vitrées avec un verre bleuté qui annonce la déclinaison de tons de bleu au niveau des sols, qui varient à chaque unité d’enseignement.
A cet intérieur en béton minimaliste répond une peau extérieure en verre sérigraphié qui thématise par, son motif, des «impressions d’enfance»: des formes libres, qui évoquent autant la cristallisation de l’eau en neige que le «tag» new-yorkais de l’artiste Keith Haring.
- Architectes
- meier + associés architectes
- Année
- 2006
- Statut du projet+
- Construit
- Client
- Commune d'Aigle
Projets liés
Magazine
-
-
Bâtiment de la semaine
The Three-Body Problem: Trapped in a Wave Sandwich
Eduard Kögel, Scenic Architecture Office | 13.04.2026 -














