Living together
Agnes-Hundoegger-Weg 9-12, Hannover, Allemagne
The Apartment building Agnes-Hundoegger-Weg is a project of densification in the context of inner urban periphery. It is situated within a heterogeneous city block on a plot formerly used by a plant nursery, south of the city centre of Hanover (Germany). The block is located between the 19th century urban fabric of Hanover’s South, a large brewery, a cemetery and a lake. It consists of a school area, one and two-story single-family houses as well as apartment buildings from the 1970s and 1990s and remaining structures of the nursery.
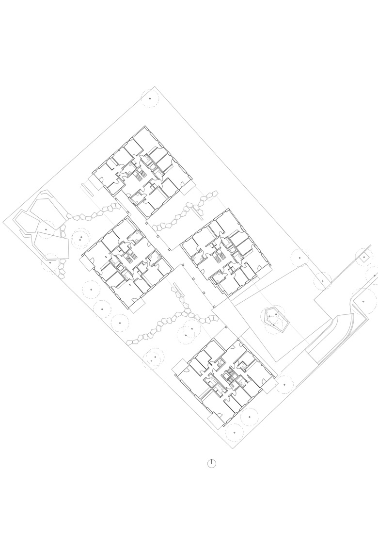
The new building ensemble asserts a space-forming gravity with the capacity to bind together its disperse environment. Four cubic volumes are playfully placed in the space among the heterogeneous building stock of the surrounding area and moved as close as possible together, such that three volumes partially merge with one another and one stands somewhat apart.
In spite of the high urban density and limited site, the four compact building volumes formulate exciting and well usable open spaces with different qualities: an entry plaza as a welcome area, three open garden courtyards, a playground and a footpath between the cluster of three and the standalone building. These spaces allow the sun to penetrate deep into the interior of the buildings and create ever-changing perspectives and views.
Each of the volumes has a spacious, central interior circulation. Arranged around this core is a zone with the serving rooms of the apartments as well as installation and elevator shafts. Between this serving ring and the façade the ceiling spans freely enabling flexible floor plans. Where the building volumes overlap, large 3-bedroom apartments with special spatial qualities are situated. The living room is a kind of "bridge space" that is opens up to two of the garden courtyards.
All openings are designed floor-to-ceiling and open mostly onto balconies, terraces or exits, so that each apartment is provided with spacious open spaces.
Covered outdoor spaces adjoin the entrances. An open hall and a colonnade raised from the ground connect the circulations. For the residents they are spaces of informal encounter.
A basement connects all four the buildings and cores. It contains an underground car park, bicycle parking and storage boxes.
In terms of material, the building ensemble blends into the surroundings characterized by red brick, but emphasizes its independence through clear cubic shapes. The facades created of bricks are conceived as space frames with panels that seemingly slide within, conveying a glimpse of lightness that contrasts the heaviness of the brick materiality. All facades are composed of similar elements but without duplicating identical elevations. The entire ensemble stops short above the ground, so that it seems to hover over the ground and only be docked on to the firmly grounded entrance plateau. The brick-red grout enhances the monolithic expression of the buildings. It emphasizes the texture of the facades that are composed of recessed areas with pattern of sticking-out header bricks inside the even space-frame structure. That creates a play of shadows moving with ever-changing light conditions and renders the facades alive. The facade design intentionally makes no distinction between privately owned condominiums and social housing.
The four buildings form communities with thirteen to eighteen residential units with a total of 63 apartments on four floors, all of which meet German energy efficiency standards KfW 55. In addition to twelve condominiums in the separately placed southern building, there are rental apartments in the three-part building, 40% of which are publicly funded and 60% for middle income groups. The apartment sizes range from one- to three-bedroom apartments between 45 and 115 square meters. One of the four structures is fully inhabited by an inclusive living group.
Characteristics
63 apartments
Plot Area: 5.333 m²
Floor Area: 5.835 m²
Awards:
German Architecture Award 2021
State Prize for Architecture Lower Saxony 2020
BDA Award Lower Saxony 2023
Heinze ArchitekturAWARD 2022 (Design)
German Brick Award 2021
- Architectes
- SMAQ
- Année
- 2019
- Statut du projet+
- Construit
- Client
- Theo Gerlach Wohnungsbau-Unternehmen
- Équipe
- Andreas Quednau, Sabine Müller, Daniel Gross, Desislav Drenski, Lisa Thrainer, Lorenzo Ciccu, Niccolò Cozzi, Silke Heydasch, Aryn Machell, Jorge Valiente Oriol
- Landscape architecture
- lad+ landschaftsarchitektur diekmann
- Structural engineer
- Furche Geiger Zimmermann
































