Logistikbereich mit Verwaltung Promega
Gutenbergring 10, Walldorf, Allemagne
Mit dem Projekt „Promega under one Roof“ wurden die in Mannheim auf verschiedene Standorte verteilten Funktionsbereiche und Tochtergesellschaften der Promega Corp. unter einem neuen Dach vereint.
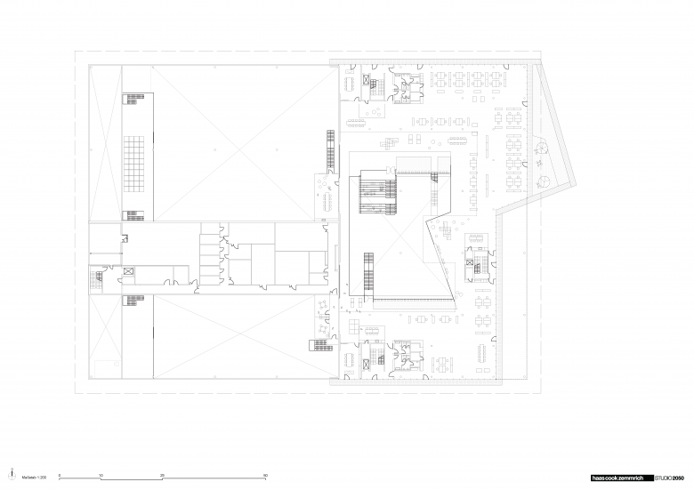
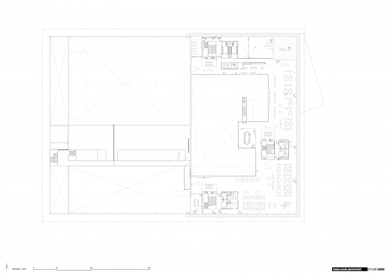
Für das Logistikzentrum mit Verwaltung in Walldorf gruppieren sich die Büros, Logistik- und Produktionsbereiche um einen mehrgeschossigen Marktplatz. Mitarbeiter, Gäste und Besucher werden über den markanten Haupteingang, der von auskragenden Geschossplatten und einem aus der Gebäudekante herausgedrehtem Gebäudeteil gebildet wird, an diesen Ort geführt und im Inneren auf den einzelnen Ebenen verteilt.
Die offene, 3-geschossige Arbeitswelt bietet etwa 115 Mitarbeitern einen neuen Arbeitsplatz und ausreichend Raum für Erweiterungen und Wachstum in den nächsten Jahren. Unterstützt wird der konzeptionelle Leitgedanke, die unterschiedlichen Funktionen unter einem Dach zu vereinen, von einem das Gebäude überspannenden, rund 9.000qm großen Holztragwerk.
Die rechteckige Dachfläche wird von einer für alle Funktionsbereiche einheitlichen Konstruktion als 2-achsig lastabtragender Holzträgerost überspannt. Dessen Unterstützung erfolgt punktförmig mit schlanken Rundstützen, die ressourcensparend aus hochfestem Beton im Schleuderbetonverfahren hergestellt werden. Die Dachkonstruktion wurde als reziprokes Tragsystem ausgeführt welches sich besonders für die Holzbaubauweise eignet, da gänzlich auf beigesteife Verbindung der Haupttragelemente verzichtet werden kann. Die 2–achsige Tragwirkung wird durch die alternierende Anordnung der schlanken Biegeträger aus Brettschichtholz erreicht. In den Anschlüssen müssen lediglich Querkräfte übertragen werden.
Zur Ausstattung des Neubaus gehören neben den Flächen für Logistik, Geräteproduktion und Büro u.a. ein Konferenzbereich, Räume für den technischen Support, Grünflächen im Atrium und den Büroebenen, Mitarbeitercafé, Fitness- und Ruheräume. Als innere Orientierung dient eine auf die vier Seiten des Gebäudes abgestimmte Farbwelt, die sich in den Abendstunden auch nach außen hin abzeichnen wird.
Der bewusste Umgang mit den verfügbaren Ressourcen Land, Energie, Wasser, Baustoffen und Mensch bei Bau und Betrieb der Immobilie war integraler Bestandteil der Planung. Das beinhaltet die Renaturierung der zuvor agrarwirtschaftlich genutzten Fläche als auch die Aufstellung eines wirksamen, mit der Architektur abgestimmten Klima- und Komfortkonzepts. Die Renaturierung des Außenraums sieht die Aufrechterhaltung des natürlichen Wasserkreislaufs vor. Hierfür wurden Dachflächen größtenteils als Gründach angelegt, versiegelte Flächen auf ein Minimum beschränkt und eine Versickerungsmulde wurde geschaffen. Der im Wasserkreislauf eingebundene See dient als Regenwasserrückhalt und entlastet das öffentliche Entwässerungsnetz. Als weitere Funktionen erfüllt die angelegte Wasserfläche die Filterung, die Verbesserung des Mikroklimas, die Grauwassernutzung, die Nutzung als Löschteich und die Bewässerung der Grünflächen. Die leicht modellierte Landschaft wurde mit lokal beheimateten Pflanzen, Bäumen und Streuobstwiesen angelegt. Zudem gibt es neben dem Logistikhof, Stellplätzen und erforderlichen Wegen auch Outdoor Offices,Terrassen und einen Fitnesspfad.
Um den menschlichen Komfortbereich optimal zu bedienen, sind im Inneren des Neubaus Räume, Gebäudehülle und Technik mit Blick auf Heizung, Kühlung, Lüftung und Tageslicht aufeinander abgestimmt. Alle ständig benutzen Flächen sind auf die bestmögliche Nutzung einer natürlichen Belichtung am Arbeitsplatz ausgerichtet, unabhängig ob entlang der Fassade oder zum Atrium hin. Die Fassadengestaltung gewährleistet hierbei den thermischen Schutz mittels passiver und aktiver Regulierung der solaren Einstrahlung. Unterstützt werden der thermische Komfort und die Raumluftqualität von einer mechanischen Lüftung und einer an ein Geothermiefeld angeschlossenen Bauteilaktivierung, wobei das große Atrium zur Bildung eines natürlichen Kamineffekts im Gebäude in das Klima- und Komfortkonzept einbezogen ist. Die Grundlast des Gesamtenergiebedarfs liefert die auf dem Dach installierte Photovoltaik. Das neue Gebäude erfüllt hiernach den KfW 55 Standard.
- Architectes
- haascookzemmrich STUDIO2050
- Année
- 2019
- Statut du projet+
- Construit
- Client
- Assay Immobiliengesellschaft mbH
- Équipe
- Matthias Jänicke, Sandro Ruiu, Felix Wolf, Lena Götze, Ariane Prevedel, Lisa Brinks, Eduardo Martín Rodríguez, Dominika Lis
- Ausschreibung / Objektüberwachung
- ap88 Architektenpartnerschaft mbh
- Freiraumplanung
- Ramboll Studio Dreiseitl
- Tragwerksplanung
- Knippers & Helbig
- Bauphysik
- KNP
- Energiekonzept
- Transsolar
- Brandschutz
- hhp berlin
- HLS
- IPP Technische Gesamtplanung AG
- Elektroplanung
- Ingenieurbüro Werner Schwarz GmbH
- Bruttogeschossfläche (BGF)
- ca. 16.400 m²
- Bruttorauminhalt (BRI)
- ca. 114.000 m³
- Geschosse
- Verwaltungsteil 3, Logistikteil 1 bzw. 2
- Gesamtabmessungen L x B x H
- ca. 120 x 75 x 13,5 m
















