Maison de la Plage - Extension
Servance, France
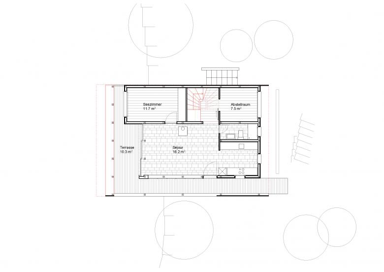
Das über 20-jährige Holzhaus am Weiher auf der Hochebene beim Hameua de la Longue Raie soll durch einen einfachen Eingriff erweitert werden. Ein turmartiger Aufbau ermöglicht den Rückzug in die Baumkronen. Eine neue Terrasse als Oberdeck bietet einen freien Blick über die Weite des Plateau der „Mille Étangs“.
- Architectes
- Rothenfluh & Partner Architekten
- Année
- 2022
- Statut du projet+
- Design














