Mautner-Markhof-Gründe
Franz Haas Platz 6 + 7, Wien, Autriche
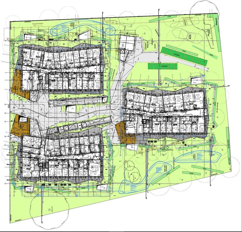
Gestaltungsidee Freiraumgestaltung
Die Erdgeschoßwohnungen der südlichen Bauteile sind erhöht. Durch die überlappende Anordnung der vorgelagerten Mauern und Hecken bestehen Verbindungen zwischen privaten und halböffentlichen Bereichen ohne das Sicherheitsgefühl der Bewohner einzuschränken. In wenigen Jahren werden die Hainbuchenhecken Schutz vor Blicken von außen bieten.
Ziel war es, vielfältige Zonen zu schaffen um den unterschiedlichen Bedürfnissen und Lautstärken aller Nutzergruppen Raum zu geben.
Das gesamte Planungsgebiet ist barrierefrei erschlossen.
Gestaltungsbereiche
Vom Estragonplatz kommend erschließt sich das Planungsgebiet zwischen den südlichen Baukörpern über einen langgestreckten Platz, der von verschiedenartig geformten Staudenflächen und begrünten Wänden begleitet wird.
Die mit Bäumen bepflanzten Versunkenen Gärten liegen am Niveau der Tiefgarage und ermöglichen deren natürliche Belichtung und Belüftung.
Ergänzend zum Baumbestand wurden im nordöstlichen Hesperidenpark, dessen Name auf eines der charakteristischen Produkte der ehemaligen Mautner Markhof Fabrik zurückgeht, gelbfrüchtige Zieräpfel entsprechend dem Ursprung des Namens gewählt: „Die Hesperiden, Nymphen bzw. Naturgeister der griechischen Mythologie, hüteten in einem wunderschönen Garten einen Baum mit goldenen Äpfeln.“
Der Nutzgarten versteht sich als Interkultureller Gemeinschaftsgarten, der in Form eines Partizipationsprojekt von wohnbunt:consult betreut wurde. Nach einer fachlich begleitenden Anfangsphase, in der gemeinsam mit den BewohnerInnen und der Hausverwaltung ein Modus zur Vergabe der Beete erarbeitet wurde, soll die Betreuung der 23 Einzelbeet (jeweils 1,25 x 3 m) für den individuellen Anbau der beteiligten GärtnerInnen in Zukunft selbst verwaltet werden.
Im Nordwesten befindet sich der Urbane Kondensator als Einladung für Jugendliche zum selbständigen Weiterbauen, der von Architekt Rüdiger Lainer entwickelt wurde. Südlich anschließend reihen sich die Spielflächen für Kinder und Jugendliche. Das Angebot umfasst sowohl sportliche, als auch soziale Elemente: Schaukeln, Balancierstämme, Hüpfgurt, Sandbereich mit Wasserpumpe und Bachlauf. Die sanften Übergänge fördern eine Durchmischung der Generationen.
Die Kleinkinderspielpätze befinden sich jeweils in unmittelbarer Nachbarschaft zu den drei Baukörpern.
Sowohl im westlichen als auch im nordöstlichen Bereich wurden Retentionsbecken zur Versickerung der Oberflächenwässer hergestellt, die abgesenkten Spiel- bzw. Ruhebereichen gleichen.
Vegetation
Baumbestand: Buchengruppe, Platane
Bepflanzung:
Bäume:
Versunkene Gärten: Bergahorn bzw. am Hauptweg Platane
Westen: Feldahorn, Baumhasel, Lederhülsenbaum, Schnurbaum, Mehlbeere
Süden: Platane, Zürgelbaum, Maulbeere
Abgrenzung zum zukünftig öffentlichen Weg im Osten (§ 53 Fläche): Spitzahorn
Hesperidenpark: gelbfrüchtige Zieräpfel
geschnittene Hecken: Hainbuche
freiwachsende Sträucher: Flieder, Duftjasmin, Felsenbirne, Sommerflieder
Kletterpflanzen auf den Wänden der Fahrradboxen: Efeu, Mauerkatze, Immergrünes Geißblatt
Beete vor den Fahrradboxen: Mischung aus Blütenstauden und Gräsern
- Architectes-Paysagistes
- Doris Haidvogl
- Année
- 2014
- Statut du projet+
- Construit
- Architektur
- RLP Rüdiger Lainer + Partner




