Médiathèque et archives cantonales du Valais
Rue de Lausanne, Sion, Suisse
1er prix
L’objectif du projet est de regrouper sur le site des anciens arsenaux militaires de la Ville de Sion plusieurs organismes cantonaux à vocation culturelle, notamment la Médiathèque du Valais et les Archives d’Etat. Ce rassemblement a pour vocation la création d’un véritable pôle culturel, scientifique et patrimonial qui favorise les échanges disciplinaires et encourage la recherche, la formation et les rencontres, l’optimisation de la gestion et conservation du patrimoine valaisan ainsi que son accessibilité au public. Il se veut également lieu de référence pour les rencontres entre artistes et opérateurs culturels.
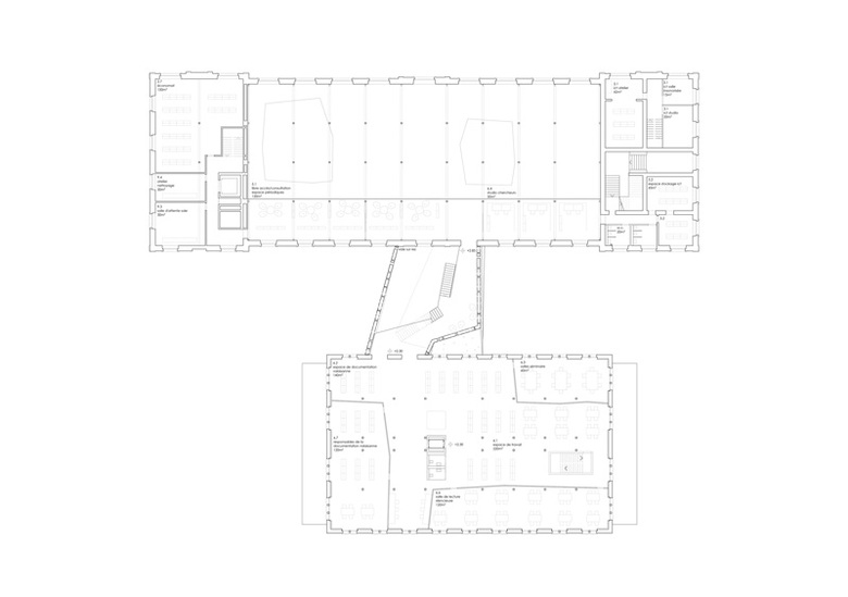
Le projet opte pour la conservation et la mise en valeur des deux arsenaux en y intégrant ces fonctions nouvelles: l’Arsenal cantonal (1895, architecte Joseph de Kalbermatten) disposé au Nord du site, et l’Arsenal fédéral (1917) disposé au Sud. L’enjeu principal de l’intervention architecturale est ici d’assurer l’assemblage de deux bâtiments à haute valeur patrimoniale en un ensemble cohérent.
La mise en place d’un nouveau bâtiment de liaison participe de cette intention en reliant les différents plateaux des deux arsenaux existants. De vocation avant tout distributive, il devient également un espace de référence: lieu de tous les passages, de tous les regards et de la collectivité. La forme pliée composée de facettes triangulaires planes fait référence au cristal de roche de la nature valaisanne. A une peau intérieure dématérialisée et blanchie, ponctuée d’éclats lumineux, répond sur l’extérieur une façade en panneaux d’acier inoxydable poli dans laquelle se reflètent le paysage, le ciel et les bâtiments existants, proposant ainsi une observation changeante de la substance historique du lieu.
L’enjeu majeur du projet a été d’assurer l’intégration d’espaces biens spécifiques et différenciés de l’affectation initiale dans une structure existante: donner à voir l’intervention contemporaine tout en préservant la substance historique. Une attention particulière a été accordée à l’intégration de toute l’infrastructure technique nécessaire tant aux nouvelles conditions de confort intérieur qu’à la préservation des ouvrages précieux.
- Architectes
- meier + associés architectes
- Année
- 2016
- Statut du projet+
- Construit
- Client
- Etat du Valais
- Équipe
- direction des travaux: cagna+wenger architectes, ingénieur civil: Bisa, Ingénieur géotechnicien: BEG, ingénieur CVS: GD Climat, ingénieur électricien: Lami, ingénieur acoustique: bS Lucane, ingénieur façade: Arteco, Géomètre: Geosat, artistes: Daniel Schlaepfer et Pierre Vadi, photographe: Yves André
Projets liés
Magazine
-
Bâtiment de la semaine
The Three-Body Problem: Trapped in a Wave Sandwich
Eduard Kögel, Scenic Architecture Office | 13.04.2026 -
-














