Mehrfamilienhaus Bergbach, Erlenbach
Erlenbach, Suisse
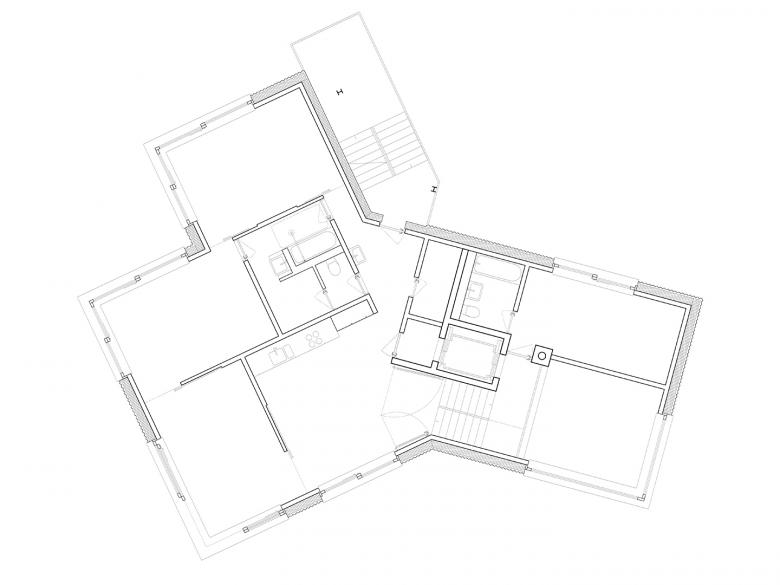
Wohnbau mit 4 Wohnungen und verschiedenen Gemeinschaftseinrichtungen | Wettbewerb: 2015 (1. Preis) | Projektierung: 2015-2024 | Bauherrschaft: Privat | Architektur: Roider Giovanoli Architekten in Arbeitsgemeinschaft mit Edelaar Mosayebi Inderbitzin Architekten AG ETH SIA BSA, Zürich
- Architectes
- Roider Giovanoli Architekten ETH BSA SIA
- Année
- 2024
- Statut du projet+
- Construit
- Client
- Privat











