MFH Frohburgstrasse, Zürich
Suisse
Umbau/Aufstockung EFH zu MFH
mit 4 Eigentumswohnungen
Bauherrschaft: Erbengemeinschaft
Direktauftrag 2021, Bezug Mai 2024
Anlagekosten BKP 1 – 9: Fr. 3’954'000.-
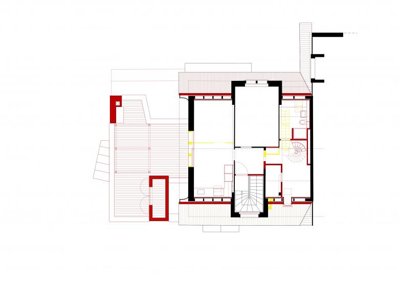
Das stattliche, mit der Nachbarliegenschaft zusammengebaute Einfamilienhaus von 1917 steht in einem durch-grünten Wohngebiet am Zürichberg. Die vier neuen EigentümerInnen wünschten die Umwandlung des Hauses zu je einer Eigentumswohnung.
Die Überbauungsziffer war im Bestand bereits ausgeschöpft. Mit einer Aufstockung des 1926 angebauten Garagenteils und dem Ausbau des Untergeschosses konnte die Ausnützung aber noch etwas erhöht werden.
Im ursprünglichen Altbau mit dem steilen Satteldach wurde die Raumstruktur nur minimal angepasst, Fassaden und Holzwerk wurden detailgetreu restauriert, blieben aber unverändert.
Der Anbauteil erhielt eine Aufstockung in gewichtssparender, vorfabrizierter Holzbauweise. Das neue Volumen schliesst im OG mit zwei markanten Einschnürungen so an die Giebelfassade des Bestandes an, dass das weit vorstehende Steildach des Altbaus nicht tangiert wird. Die dadurch geschaffenen eingezogenen Terrassen prägen den Grundriss im OG und die Dachterrasse der Wohnung darüber.
Der grobe Verputz am Altbau wurde abgespitzt und ein Dämmputz in der gleichen Körnigkeit und Farbgebung neu aufgebaut, so dass das energetisch sanierte Haus weiterhin nahtlos mit dem Nachbargebäude verschmilzt.
Der aufgestockte Anbau hingegen erscheint mit seiner expressiv modellierten Volumetrie und den wenigen, gezielt positionierten Fenstern in der vorgehängten Fassade als Neubauteil. Die Farbigkeit von Glasmosaik und Fugenfarbe vermitteln zum Altbau, der verputzte Sockel bindet die beiden Gebäudeteile zusammen.
- Architectes
- Stalder & Buol
- Année
- 2024
- Statut du projet+
- Construit
Projets liés
Magazine
-
-
Bâtiment de la semaine
The Three-Body Problem: Trapped in a Wave Sandwich
Eduard Kögel, Scenic Architecture Office | 13.04.2026 -


































