Mieterausbau Büroetage Bellerivestrasse
Zürich, Suisse
Transparenz und Opazität —
Drei als Dachkörper vereinte Wohnetagen thronen auf einem 1970er-Jahre Geschäftshaus. Der Ausbau des Bürogeschosses darunter schafft unterschiedliche Arbeitswelten auf einer Ebene.
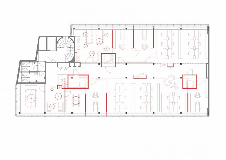
Nahe des Zürcher Seebeckens eröffnete sich für ein in die Jahre gekommenes Bürohaus eine neue Chance: Dank der Aufstockung um zwei Wohnetagen konnte die Gebäudehöhe voll ausgeschöpft und der Bau fit für die Zukunft gemacht werden. Im zweiten Bürogeschoss erteilte eine Privatbank den Auftrag zum Ausbau der angemieteten Etage. Technische Gegebenheiten wie die auf das Fassadenraster ausgerichteten Deckensegel zur Klimaregulierung erschwerten eine freie Raumeinteilung in kleinere Einheiten. Dies führte Züst Gübeli Gambetti zu einer interessanten Lösung.
Drei freischwimmende, raumhaltige Boxen zonieren den Grundriss. Sie bilden eine Raumabfolge, die Blickverbindungen schafft, stoppt und sogar komplette Durchsichten ermöglicht. Die Boxen sind – ganz «Black Boxes» – aussen in Schwarz gehalten, innen dagegen mit schimmernden Gold-, Silber- und Kupfertönen austapeziert. Nur von einer Seite zugänglich, bieten sie introvertierte Rückzugs- oder Sitzungsräume. Sie stehen im atmosphärischen Kontrast zu den gläsernen Trennwänden, die da und dort eine Parallelwelt im Grundriss ausscheiden. Ein bisschen fühlt man sich – im positiven Sinn – wie in einem Aquarium, in dem drei geheimnisvolle Schatzkisten ruhen.
Überhaupt ist das Spiel von Transparenz und Opazität ein grosses Thema: Den Entwerfenden war es wichtig, Openspaces, Glaszellen und Raumboxen in einen osmotischen Austausch zu bringen – und damit zu einem Angebot verschiedener räumlicher Interaktionen. Statt Tang nehmen üppige Vorhänge den Glaswänden Sicht, Härte – und auch den Schall. Ebenso im offenen Gangbereich, wo Teppich und Holzlamellen den Eindruck beherrschen. Feine Licht- und Materialspiele sowie eine harmonische, wässrig-graue Farbgestaltung mit metallischen und hölzernen Akzenten tragen zum edlen Ambiente bei, in dem es sich auch sehr gut konzentriert abtauchen lässt. (mc)
- Habitations collectives
- Usage mixte
- Bâtiments de bureaux
- Reconversions + extensions
- Furniture / Product
- Architectes
- Züst Gübeli Gambetti
- Année
- 2021
- Statut du projet+
- Construit
- Client
- Kaleido Privatbank AG
Projets liés
Magazine
-
-
Bâtiment de la semaine
The Three-Body Problem: Trapped in a Wave Sandwich
Eduard Kögel, Scenic Architecture Office | 13.04.2026 -













