Staatliches Museum für Archäologie
Chemnitz, Allemagne
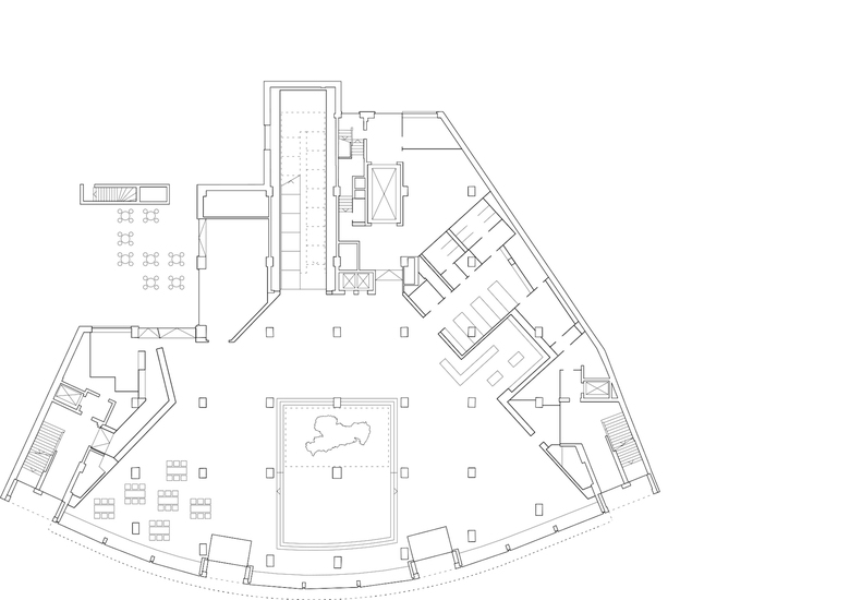
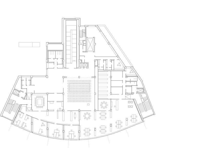
Das ehemalige Kaufhaus Schocken von Erich Mendelsohn wird zum Museum – beim Umbau werden vorhandene architektonische Motive aufgenommen und gestärkt. Damit die sorgsam restaurierte Bandfassade nicht für Ausstellungszwecke verdunkelt werden muss, entstehen in den Obergeschossen durchlaufende „Studienerker“ mit Tageslicht. Die eingestellten Ausstellungswände bleiben in der Höhe unter den Unterzügen des Bestandes, um die Raumwirkung zu bewahren. Eine neue zentral gelegene Treppenrampe verbindet alle Ausstellungsebenen.
Zusammenarbeit mit Knerer und Lang Architekten, Dresden
Auftraggeber
PVG Projektierungs- und Verwaltungsgesellschaft Schocken mbH
Nutzer
Staatliches Museum für Archäologie Chemnitz (smac)
Staatsbetrieb Landesamt für Archäologie Sachsen
Bruttogeschossfläche
17.000 m2
Brutto-Rauminhalt
69.300 m3
Nutzfläche
9.800 m2
Leistungsbild
Lph 1 – 9 HOAI
Baukosten
KG 200-700 brutto
32,6 Mio. Euro
Architekten
Auer Weber, Stuttgart und
Knerer und Lang, Dresden
Jörn Scholz, Thomas Knerer (verantwortliche Geschäftsführer)
Fachplaner
Ausstellungsgestaltung: Atelier Brückner, Stuttgart
Tragwerksplanung: Erfurt+Mathes, Chemnitz
Haustechnikplanung: Obermeyer Albis-Bauplan GmbH, Chemnitz
Elektroplanung: Elektroplanungsbüro Künzel, Chemnitz
Bauphysik: Müller-BBM GmbH, Dresden
- Architectes
- Auer Weber
- Année
- 2014
- Statut du projet+
- Construit













