Neubau Geschäftsstelle Schweizerisches Rotes Kreuz

Strassenansicht / Eingangsbereich
Photo © Tom Bisig

Der Blick in die benachbarte Tellstrasse illustriert die baulicheTendenz im Gundeldingerquartier exemplarisch. Während die Reihenhäuser der Gründerzeit fein gegliedert und kleinmassstäblich wirken, tragen die Bauten seit den fünfziger
Jahren den neuen Bedürfnissen nach hoher Ausnützung und moderner Wohnungsform plastisch Rechnung. Das Quartier entwickelt sich vom romantischen Wohnquartier,
wie es noch in vielen Teilen des Gundelis zu finden ist, zu einem urbanen Gefüge aus vielgeschossigen, geschlossenen Randbebauungen mit dem typischen Nutzungsmix. Der neugestaltete Tellplatz strahlt als Ort der Kommunikation zusätzliche städtische Qualitäten in das ganze Quartier.

Mit dem Ersatz des alten Wohngebäudes an der Bruderholzstrasse 20 zeichnet auch der Neubau für das SRK diesen Wandel nach.

Das grosszügig gegliederte Erdgeschoss und die fein profilierten und grossen Fenster der strassenseitigen Fassade verleihen dem Haus einen städtischen Ausdruck. Die Fassade ähnelt in ihrem Aufbau den frühen Häusern des Quartiers, indem Sockel-, Geschossgliederung, Simse und klare Fensterbetonungen zeitgemäss interpretiert und private, plastische Ausstülpungen in der Strassenflucht vermieden werden.
Diese Strategie der Reduktion äussert sich auch in der Auswahl weniger Baustoffe, welche eine zeitlose, durch den Gebrauch gut alternde Architektur verspricht.

Tradition der zwei Seiten
Die Stadt Basel verfügt mit den zwischen 1926 und 1938 erbauten Baumgartnerhäusern schöne und sehr beliebte Beispiele für eine städtische Gebäudetypologie von Blockrandbebauungen: Die Unterschiedlichkeit der Strassenund Hofseite ist das Abbild von Öffentlich und Privat.

Das SRK-Haus wird ebenso rational und einfach organisiert.Struktur, Erschliessung und Fassaden des Neubaus werden elementar gelöst: Die Strassenseite hat einen städtischen Ausdruck, während auf der Hofseite dem Gebäude eine Schicht von auskragenden Balkonplatten vorgelagert wird. Diese Balkons erzeugen zusammen mit der plastischen Gestaltung des grünen Innenhofs eine warme, privatere Atmosphäre.

Es galt, der bekannten, jedoch an verschiedenen Orten in der Stadt verstreuten Institution SRK eine im Ausdruck angemessene Identität in Basels Stadtbild zu schaffen. Die vielseitigen Dienstleistungen des Vereins werden nun in einem neuen Zentrum humanitären Wirkens konzentriert.

Mit einfachen Mitteln werden der Nutzungsmix und die unterschiedlichen Bewegungsströme von Laden, Büros, Schulungsräumen für externe Besucher und Wohnungen auf engstem Raum kompakt organisiert. Der zurückgesetzte Teil der Strassenfassade schafft einen witterungsgeschützten Eingangsbereich als Vorzone zu zwei separaten Eingangshallen und betont somit auch die Adresse des
Schweizerischen Roten Kreuzes. Mit dem Erschliessungskern, als dem einzig tragenden Element im Inneren und den tragenden Aussenwänden entsteht eine sehr offene und flexible Struktur, die den unterschiedlichen Grundrisseinteilungen gerecht wird.

Das Haus erhält das Minergiezertifikat. Es verfügt über ein optimal kompaktes Volumen, eine dichte und sehr gut gedämmte Aussenhülle und eine kontrollierte Lüftung mit Wärmetauschern. Ferner wurde der Stromverbrauch der Beleuchtung und aller installierten Haushaltsgeräte minimiert.

Die immer höheren energetischen und technischen Anforderungen an das Gebäude mussten mit hoher architektonischer Qualität und gutem Komfort für den Nutzer
in Einklang gebracht werden. Darunter verstehen wir z.B.
- eine dem Haus angemessene Material- und Konstruktionswahl, langlebig und für den Nutzer behaglich,
- qualitativ hochwertige Baustoffe, zeitlos und gut alternd,
- die Wahl einer möglichst einfachen statischen Struktur, die eine flexible Grundrissgestaltung ermöglicht,
- einen einfachen, aber grosszügigen Ausdruck der Fassaden
- eine diskrete und gut zugängliche Haustechnik, die nicht in den Vordergrund tritt.

Strassenansicht
Photo © Tom Bisig
Hofansicht mit Gartengestaltung
Photo © Tom Bisig
Hofansicht
Photo © Tom Bisig
Hofseitige Balkone
Photo © Tom Bisig
3.Obergeschoss - Büros
Photo © Tom Bisig
4.Obergeschoss - Wohnungen
Photo © Tom Bisig
Strassenansicht / Eingangsbereich
Photo © Tom Bisig
Hofseitige Balkone
Photo © Tom Bisig
Hofsetige Balkone
Photo © Tom Bisig
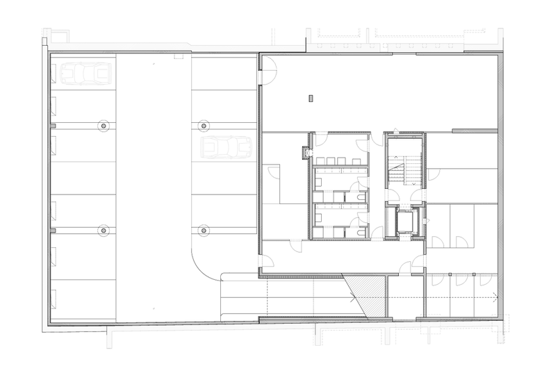
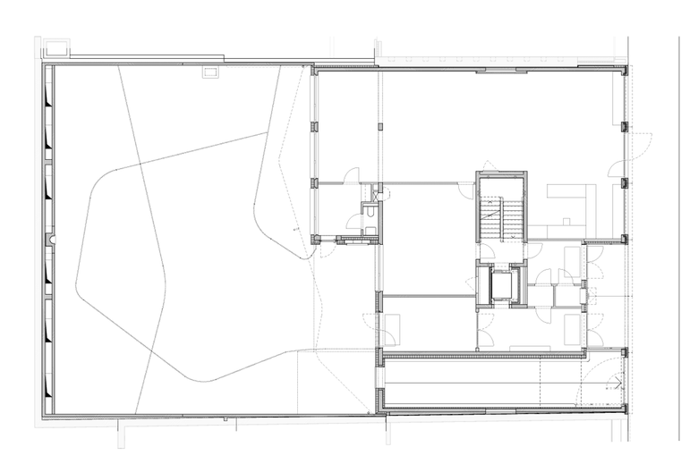
Untergeschoss (Einstellhalle)
© Forsberg Architekten AG
Erdgeschoss (Eingang, Laden)
Dessin © Forsberg Architekten AG
1.Obergeschoss (Schulung)
Dessin © Forsberg Architekten AG
2.Obergeschoss (Schulung)
Visualisation © Forsberg Architekten AG
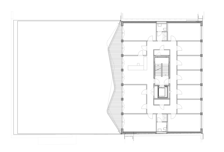
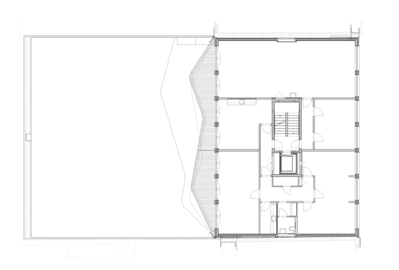
3.Obergeschoss (Büros)
Dessin © Forsberg Architekten AG
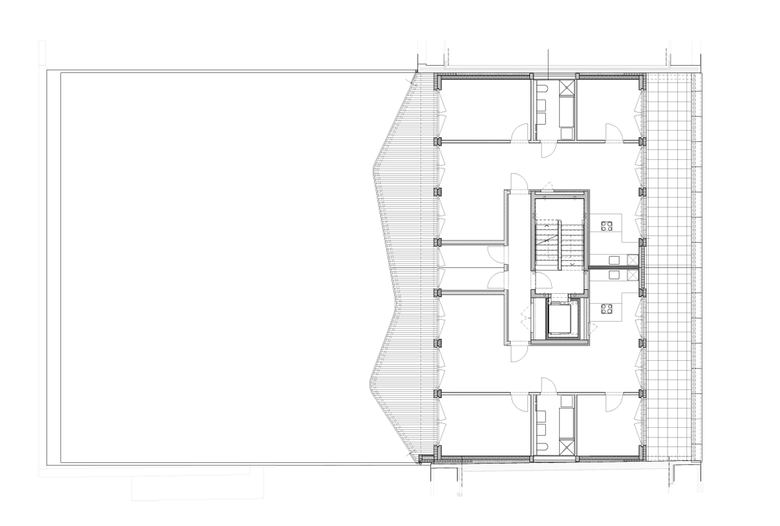
4.Obergeschoss (Wohnungen)
Dessin © Forsberg Architekten AG
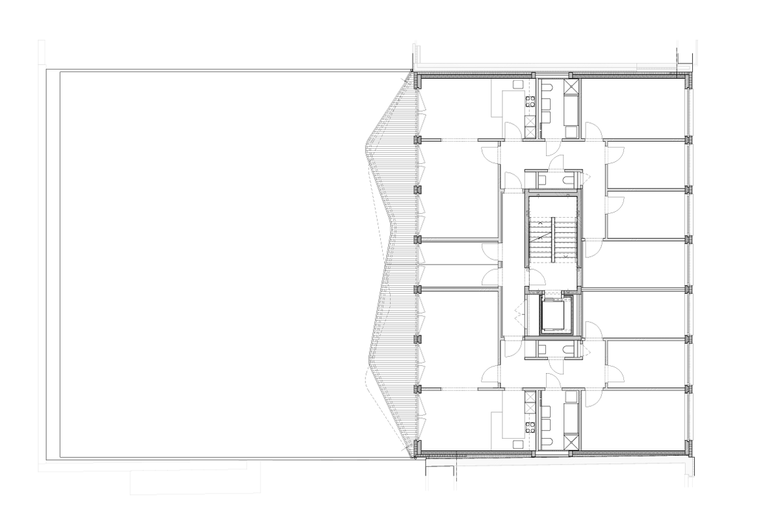
5.Obergeschoss (Wohnungen)
Dessin © Forsberg Architekten AG
Schnitt
Dessin © Forsberg Architekten AG
Strassenansicht
Dessin © Forsberg Architekten AG
Hofansicht
Dessin © Forsberg Architekten AG
Architectes
Forsberg Architekten AG
Année
2011
Statut du projet+
Construit

Projets liés 

  • Moos
    playze
  • Reiters Reserve Premium Suiten
    BEHF Architects
  • Erweiterung und Instandsetzung Hallenbad Altstetten
    MIYO Visualisierung
  • Neubau von fünf Einfamilienhäusern
    Bäumlin+John AG
  • The Forge in der 105 Sumner Street in London
    Kiefer Klimatechnik GmbH

Magazine 

Autres projets de Forsberg Architekten AG 

Aufstockung Stadthaus
Basel, Suisse
Einbau einer Wohnung in ein Basler Stadthaus
Basel, Suisse
Um- und Anbau Stadthaus von 1879
Basel, Suisse
Umbau und Renovation Mehrfamilienhaus von 1957
Basel, Suisse
Umbau Ferienhaus in Vitznau
Vitznau, Suisse