Neuer Empfang Monosuisse AG

Empfang
Photo © Lauber Maier Architekten AG

Neuer Empfang für die Monosuisse AG in der Viscosistadt Luzern Nord.

Sitzungszimmer
Photo © Lauber Maier Architekten AG
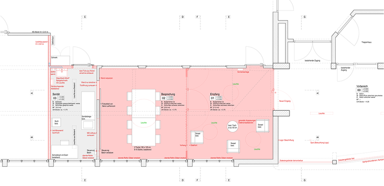
Grundriss
Dessin © Lauber Maier Architekten AG
Schnitt
Dessin © Lauber Maier Architekten AG
Leuchte
Photo © Lauber Maier Architekten AG
Architectes
Lauber Maier Architekten AG / ETH FH SIA
Année
2017
Statut du projet+
Construit
Client
Monosuisse AG

Projets liés 

  • Moos
    playze
  • Reiters Reserve Premium Suiten
    BEHF Architects
  • Erweiterung und Instandsetzung Hallenbad Altstetten
    MIYO Visualisierung
  • Neubau von fünf Einfamilienhäusern
    Bäumlin+John AG
  • The Forge in der 105 Sumner Street in London
    Kiefer Klimatechnik GmbH

Magazine 

Autres projets de Lauber Maier Architekten AG / ETH FH SIA 

Projektwettbewerb Schulhaus Brühl
Solothurn, Suisse
Vorprojekt Alterszentrum Tschann
Buchrain, Suisse
Remisen SBB Historic
Olten, Suisse
Gesamtplanung Bahnhof Küssnacht a. Rigi
Küssnacht a. Rigi, Suisse
Umbau Stall Mooshof
Beromünster, Suisse