NONAM

Photo © Roger Frei

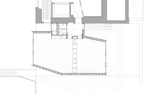
Der neue Mehrzweckraum ist als  zeltartiger Pavillon auf dem Dach des rückseitigen Anbaus der ehemaligen Brauerei konzipiert. Vom Eingangshof am Fuss der imposanten Stützmauer gesehen, wirkt er als Zeichen für die heutige Nutzung des Gebäudes: ein fremder Kopf, wie ein Totem auf das Dach des Industriebaus aufgesetzt. Der Aussenraum fliesst visuell nicht nur rund um den freistehend wirkenden Neubau, sondern auch durch das an beiden Enden verglaste Gebäude hindurch. Der Mehrzweckraum wird lediglich durch einen kompakten Körper mit dem Museum verbunden, in welchem auch die Toiletten integriert sind. Das Tragwerk besteht aus beidseitig verkleideten Holzrahmen. Eine vor der Dämmebene aufgespannte und verschweisste Dachfolie bildet die Aussenhülle. Form und Struktur des Gebäudes sowie die geprägte, kupferfarbene Oberfläche erinnern an die traditionelle Bauweise von Zelten, Booten oder Alltagsgefässen aus Holzgeflechten und gegerbten Tierhäuten. Der Anbau wurde zum Holzpreis Schweiz 2009 mit einer Auszeichnung prämiert.

Photo © Roger Frei
Photo © Roger Frei
Photo © Roger Frei
Photo © Roger Frei
Photo © Roger Frei
Architectes
GXM Architekten
Année
2009
Statut du projet+
Construit

Projets liés 

  • Moos
    playze
  • Reiters Reserve Premium Suiten
    BEHF Architects
  • Erweiterung und Instandsetzung Hallenbad Altstetten
    MIYO Visualisierung
  • Neubau von fünf Einfamilienhäusern
    Bäumlin+John AG
  • The Forge in der 105 Sumner Street in London
    Kiefer Klimatechnik GmbH

Magazine 

Autres projets de GXM Architekten 

Le Ticle Zentrumsüberbauung
Delémont, Suisse
Multifunktionale Überbauung Gare des Eaux-Vives
Genf, Suisse
Familien- und Generationenhaus
Zürich, Suisse
Dauerausstellung MICR
Genf, Suisse
Wohnwerkstatt
Dübendorf, Suisse