Oase Oerlikon
Oerlikon, Suisse
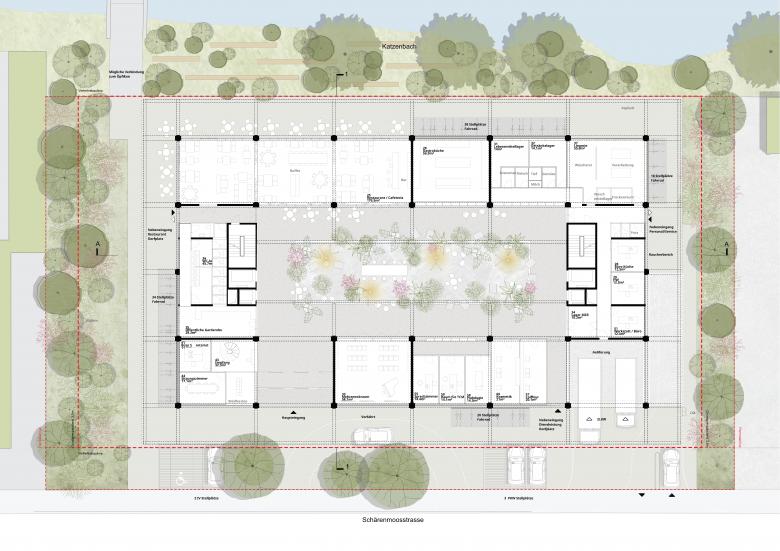
The “Oasis Oerlikon” is a hybrid urban building block in a hard urban context, consisting of a stack of a double-storey public ground floor, a compact volume for living and care and a communally used green roof terrace.
The volume encloses an interior village square that expands upwards into a lively residential courtyard up to the communally used roof terrace, thus intertwining the different degrees of publicity and requirements of the programme and creating a self-evident togetherness of the users.
The combination of wood and concrete construction follows this programmatic division and constructive logic, resulting in an innovative and sustainable building that combines architectural-spatial and structural-constructive aspects.
The circulation and lounge spaces complement and overlap each other in a sequence of meeting possibilities in the vertical. This concept offers different possibilities for social or individual interaction depending on the time of day. A home is created characterised by the subtle degrees of differentiation of publicity, quality of open space and materiality.
- Architectes
- KCAP Zürich
- Année
- 2022
- Statut du projet+
- Construit
- Client
- moyreal immobilien ag
- Program
- Mixed-use building (9.486 m2 GFA) with two care units (1.808 m2 GFA), public services und hospitality (2.031 m2 GFA), 66 elderly apartments from 1,5 to 4,5 rooms (5.279 m2 GFA) and five careleaver apartments (367 m2 GFA)
- Role
- Architect
- Participating parties
- Fanzun, Raumanzug, Schnetzer Puskas Ingenieure, Studio Vulkan











