Olgahospital und Frauenklink
Stuttgart, Allemagne
Eröffnung Neubau Olgahospital und Frauenklinik in Stuttgart – Die Zusammenlegung zweier Einrichtungen führt zu optimalen Behandlungsbedingungen: Ein Krankenhausneubau mit 405 Betten, höchster Funktionalität und einer identitätsstiftenden Gestaltung.
Düsseldorf/Stuttgart, 09. Mai 2014. Bisher verteilten sich in Stuttgart Kinder- und Frauenklinik auf zwei unterschiedliche Standorte. Fortan sind beide Einrichtungen auf dem Gelände des Katharinenhospitals in einem Klinikum vereint und werden am morgigen Samstag, 10. Mai 2014 feierlich eröffnet. Die Zusammenlegung ist Teil der baulichen Neuordnung des Klinikums Stuttgart und ist sowohl aus medizinischer wie aus ökonomischer Sicht äußerst sinnvoll.
Die Neubauten entstanden nach dem Entwurf von HPP Architekten in Arbeitsgemeinschaft mit der Sorg und Frosch Planungs GmbH (HPP::SFP). Den Wettbewerb hatte die Architektengemeinschaft 2004 gewonnen. Die Aufgabenstellung bestand in der Unterbringung der Funktionsbereiche für Kinder- und Jugendmedizin (Olgahospital) und der Frauenklinik in jeweils eigenen Gebäudebereichen auf einem räumlich begrenzten Hanggrundstück.
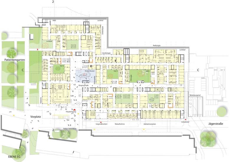
Der nun fertiggestellte Neubau besteht aus sieben Ober- und drei Untergeschossen. Die Lichthöfe, teils mit Glas überdacht, sorgen für helle und freundliche Räume. Eine auf der Westseite im Außenbereich neu geschaffene Grünachse mit Aufenthaltsbereichen, die auch als Patientengarten dient, verbindet die Hanglage mit dem jenseits der Kriegsbergstraße liegenden Stadtpark.
Die als quadratische Pavillonbauten angelegten Patientenbereiche liegen auf einem gemeinsamen, mehrgeschossigen Funktionsbau. Die Sockelgeschosse beherbergen die funktionalen Bereiche wie Empfang, Notaufnahme, Untersuchungsräume, Operationssäle, Labore, Physiotherapie, Personalräume und Konferenzbereiche. Über eine Magistrale in den drei Funktionsgeschossen werden die einzelnen Pavillons erschlossen. Ein Vorteil dieses Prinzips ist insbesondere die durch die Lichthöfe ermöglichte natürliche Belichtung.
Die Funktions- und Patientenbereiche sind auf Grund ihrer jeweiligen Fassadengestaltung auch optisch als unterschiedliche Nutzungsbereiche klar erkennbar. Für die Fassade der Funktionsgeschosse wurden großformatige Gussglasscheiben verwendet, die farblich hinterlegt in Gelb bis Grün changierenden Farbabstufungen erscheinen. Die Sockelfassade verbindet sich so mit den angrenzenden Grünanlagen. Die Fassaden der Bettenpavillons sind zeitlos und zurückhaltend gestaltet. Die horizontale Gliederung mit umlaufenden Wartungsbalkonen sowie vorgehängten, in Weiß gehaltenen Aluminiumpaneelen unterstützt den Pavilloncharakter.
Ein besonderes Merkmal des neuen Klinikkomplexes ist das kinder- und jugendgerechte Innenarchitekturkonzept, welches bei höchster Funktionalität zugleich eine angemessene und identitätsstiftende Gestaltung für die jungen Patienten bietet.
Das Olgahospital, von den Stuttgartern liebevoll auch „Olgäle“ genannt, beherbergt hoch spezialisierte pädiatrische Fachabteilungen, von der auch die Schwangeren, die zur Entbindung in die Frauenklinik kommen, profitieren. So ist künftig die optimale Versorgung von Müttern und Kindern gewährleistet.
HPP-Projektpartner Volker Biermann erläutert: „Wir haben großen Wert auf den menschlichen Maßstab gelegt. Helle, freundliche Räume, eine gute Orientierung, hohe Funktionalität und die Robustheit des Gebäudes tragen dazu bei. Die Architektur wird bereichert durch die kunstvolle Version der neuen Arche, die illustrierten Wände und Glasflächen sowie die künstlerische Gestaltung der Innenhöfe.“
Auf fast 30.000 Quadratmetern Nutzfläche stehen 331 Betten für das Olgahospital, viele als Eltern-Kind-Zimmer, und 74 Betten für die Frauenklinik zur Verfügung. Zusätzlich gibt es sechs Pflegestationen, zwei Wöchnerinnenstationen, drei Stationen für Frühgeborene, neun Operationssäle, eine Notaufnahme und mehrere Ambulanzen. Eine Anlage mit Blockheizkraft-Technologie im Untergeschoss liefert effizient und umweltfreundlich die Energie für das gesamte Klinikum.
„Die jahrelange Planung dieses sehr komplexen Gebäudes war eine besondere und verantwortungsvolle Herausforderung“, so Oliver Sorg von SFP. „Unser Fokus lag dabei immer auf dem Wohlfühlfaktor für die Kinder und Frauen, für die Mitarbeiter und Ärzte des Klinikums.“
- Architectes
- HPP Architekten GmbH
- Année
- 2014
- Statut du projet+
- Construit
- Client
- Landeshauptstadt Stuttgart vertreten durch das Hochbauamt Stuttgart
- Nutzer
- Klinikum Stuttgart
- BGF
- 96.000 m²
- Wettbewerb
- 2004, 1. Preis
Projets liés
Magazine
-
-
Bâtiment de la semaine
The Three-Body Problem: Trapped in a Wave Sandwich
Eduard Kögel, Scenic Architecture Office | 13.04.2026 -












