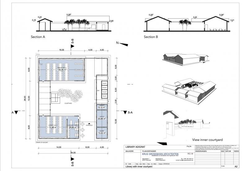
Planung Bücherei Adigrat
Adigrat, Ethiopia
Im November 2019 wurde die Fertigstellung der Schülerbücherei in Adigrat gefeiert. Adigrat, eine Stadt mit ca. 110.000 Einwohnern, liegt im Norden Äthiopiens nahe der Grenze zu Eritrea. Die Stadt litt jahrelang unter den kriegerischen Auseinandersetzungen zwischen Äthiopien und Eritrea und war und ist Anlaufstelle vieler Flüchtlinge.
Unser Büro war vom Verein Adigrat Vision e.V. Zukunft für äthiopische Kinder gebeten worden, eine Bücherei zu planen. Ziel des 2010 gegründeten Münchner Vereins ist es, die Situation von Kindern und deren Mütter vor Ort durch verschiedene Projekte, wie z.B. den Bau und Betrieb eines Kindergartens, zu verbessern.
Wir freuen uns, seit Juni 2018 durch die Planung der Schülerbücherei den Verein unterstützen zu dürfen. Die Bücherei bietet den Kindern und Jugendlichen die Möglichkeit, miteinander zu lesen, zu lernen und ihre Hausaufgaben machen zu können. Außerdem soll den Schülern die Benutzung von Computern ermöglicht werden.
- Architectes
- Krug Grossmann Architekten
- Année
- 2019
- Statut du projet+
- Construit







