Projektwettbewerb, 2. Rang | Schulanlage Unterdorf | Niederbuchsiten
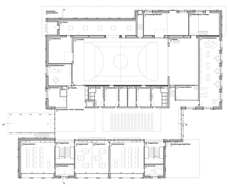
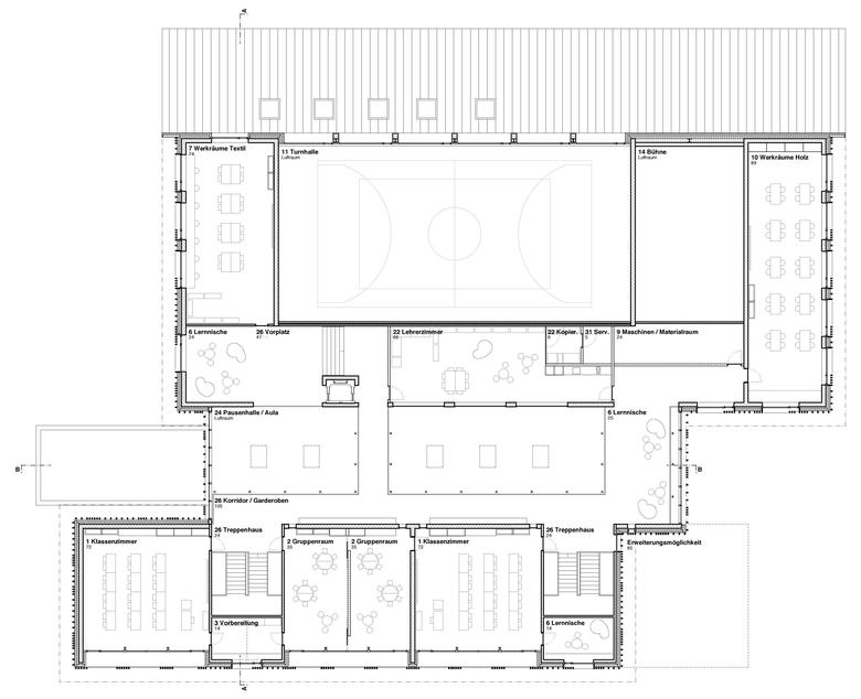
Das vorliegende Konzept nimmt die von Hermann Frey ursprünglich vorgesehene Erweiterungsmöglichkeit der Schulanlage Unterdorf auf. Der südliche Schulzimmertrakt wird nach Osten um eine zusätzliche Zimmerschicht ergänzt, welche über ein zweites Treppenhaus erschlossen ist. Die Verlängerung um knapp zwei Drittel des Bestands stärkt die Stellung des Klassentrakts und verleiht ihm optisch mehr Gewicht gegenüber dem grossen Turnhallentrakt.
Das bestehende Pausenhallendach wird gänzlich durch ein neues ersetzt und gleichzeitig um ein ganzes Geschoss angehoben. Dank der Transformierung zum zweigeschossigen Raum wird die heutige Pausenhalle ihrem Namen wesentlich gerechter. Die grosszügige Halle bietet Raum für diverse schulische Aktivitäten und Nutzungen und verbindet optisch, wie auch räumlich beide Trakte. Die alten Fassadenfenster sowie neu hinzugefügte Öffnungen in den Schulzimmern gewähren den visuellen Bezug zwischen Halle und den angrenzenden Räumen.
- Architectes
- werk1 architekten und planer ag
- Année
- 2018
- Statut du projet+
- Design
Projets liés
Magazine
-
-
Bâtiment de la semaine
The Three-Body Problem: Trapped in a Wave Sandwich
Eduard Kögel, Scenic Architecture Office | 13.04.2026 -










