Projektwettbewerb Gymnasium Thun
Thun, Suisse
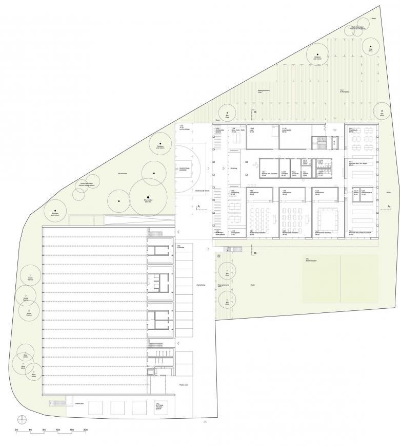
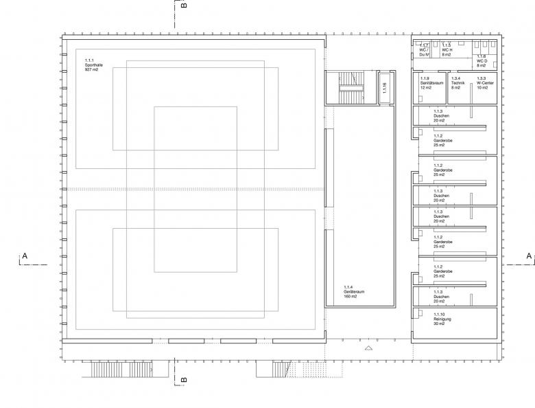
Mit einem offenen Projektwettbewerb nach SIA 142 suchte das Amt für Grundstücke und Gebäude ein städtebaulich und architektonisch stimmiges Projekt mit einem Generalplanerteam für die Projektierung und Realisierung des Neubaus Doppelturnhalle mit Schulräumen für das Bildnerische Gestalten als Ingenieurholzbau.
- Architectes
- graf furer architekten gmbh
- Statut du projet+
- Design
- Bauingenieur
- Indermühle Bauingenieure GmbH
- HLKS Ingenieure
- Amstein + Walthert AG










