Raiffeisenbank Emmen
Seetalpl. 1c, Emmen, Suisse
Mit der neuen Filiale am Seetalplatz setzt die Raiffeisenbank Emmen ein Leuchtturmprojekt in einem städtebaulich wandelnden Umfeld um. Als genossenschaftlich organisierte Bank versteht sie sich als aktiver Teil der Gemeinschaft und schafft Raum für Beratung, Austausch und Transparenz. Darüber hinaus bietet die Geschäftsstelle Platz für Veranstaltungen, Vorträge und Begegnungen und leistet damit über den wirtschaftlichen Nutzen hinaus einen gesellschaftlichen Mehrwert.
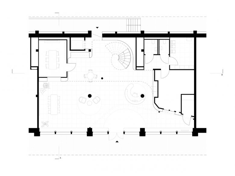
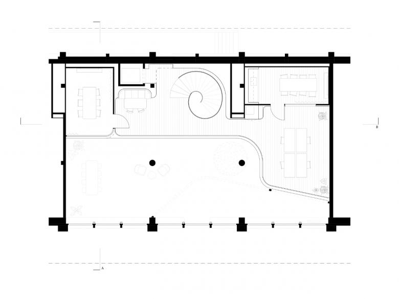
Die Filiale befindet sich im Erdgeschoss des Wohn- und Geschäftsgebäudes 4Viertel. Der Hauptraum ist geprägt durch eine grosszügige Raumhöhe und eine klare Zonierung. Drei Elemente strukturieren den Bereich: ein offener Loungebereich, ein zentraler Empfangstresen und eine gewendelte Treppe, die in die obere Beratungszone führt. Warme Rottöne setzen gezielte Akzente, ohne sich in den Vordergrund zu drängen. Der Raum wirkt einladend und orientierend zugleich.
Das Nutzungskonzept umfasst klassische Beratungsplätze und offene Zonen für Kundengespräche, Informationsanlässe und Veranstaltungen. Ein besonderes Element ist die Abtrennung des Vorraums mit den Bankautomaten (24-Stunden-Zone) vom restlichen Filialbereich. Hierfür wurde ein feinmaschiges Netz gewählt, das Sicherheit schafft, ohne den Raum abzuschotten und so den Anspruch auf Zugänglichkeit über die Öffnungszeiten hinaus unterstreicht.
Bei der Gestaltung wurden gezielte Bezüge zur lokalen Identität hergestellt und bespannte Wandpaneele und eine textile Deckenskulptur verwendet, die auf die Textilgeschichte der Viscosistadt verweisen. Die Materialien sind robust und atmosphärisch zugleich, die Farbgebung zurückgenommen, sodass eine ruhige Umgebung entsteht, die den Menschen in den Mittelpunkt stellt.
Das Projekt wurde in enger Zusammenarbeit mit lokalen Partnern umgesetzt. Die handwerkliche Präzision und das Verständnis für den Ort prägen die Ausführung und verleihen dem Projekt eine starke regionale Verankerung. Offen, engagiert und nahbar geht ein junges Team hier neue Wege in der Kundenberatung, in einer Geschäftsstelle, die mit ihrer Gestaltung den passenden Rahmen schafft.






















