Relojeria Alemana Born
Palma de Mallorca, Espagne
El nuevo espacio diseñado recientemente por los arquitectos Paloma Hernaiz y Jaime Oliver de OHLAB para la legendaria Relojeria Alemana ha abiero recientemente en el centro histórico de Palma de Mallorca.
El proyecto reflexiona sobre el mundo del lujo proponiendo un juego de maquillaje y apariencias –donde las cosas parecen lo que no son– en el que unas cajas simples y ortogonales aparecen como onduladas y distorsionadas, donde a veces estos volúmenes desaparecen camuflados por reflejos calidoscópicos y donde el entorno histórico de la ciudad (recientemente convertido en una zona exclusiva y de moda) se refleja como fragmentado, cambiante e impredecible.
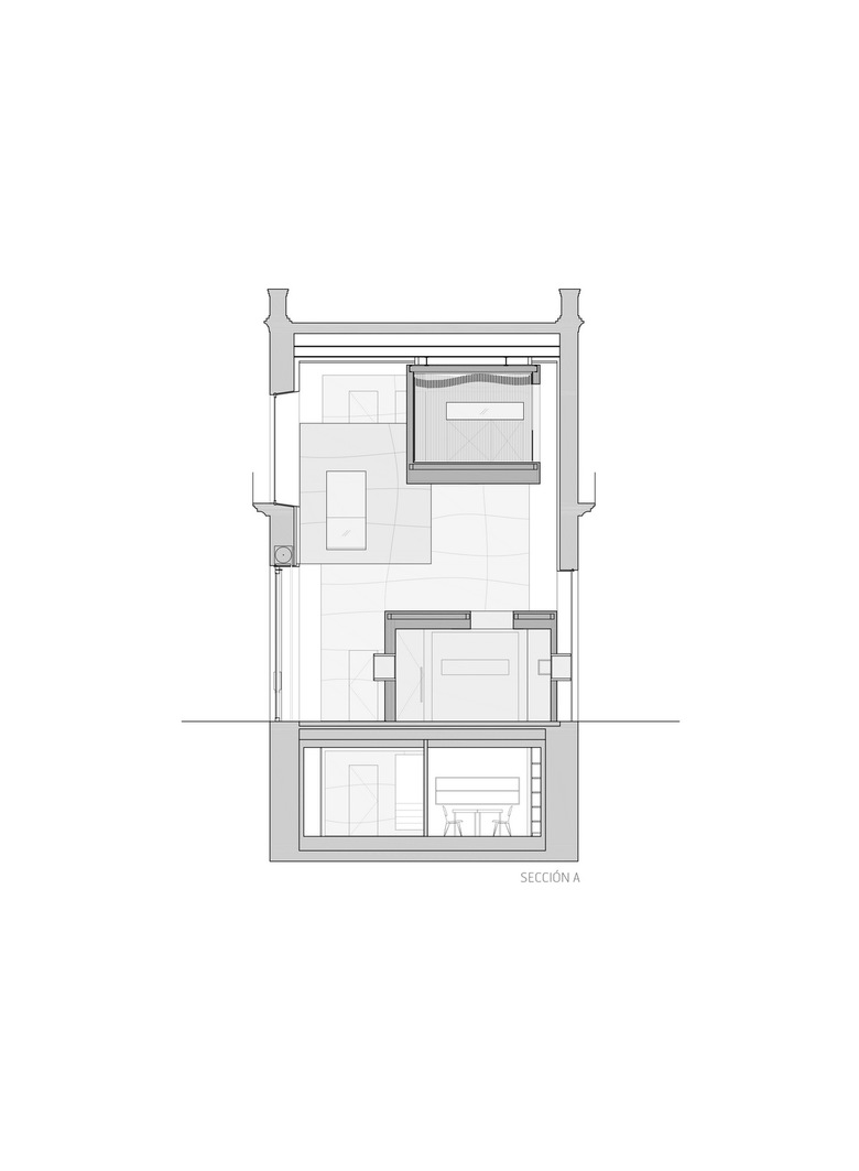
La tienda se sitúa en un pabellón independiente de tres alturas de un emblemático edificio de Palma. Ocupa 180 m2 en tres niveles e incluye una tienda Rolex en su planta baja. Respetando rigurosamente la fachada histórica se ha reestructurado completamente el interior eliminando el forjado intermedio para conectar los diferentes niveles sobre la calle y proporcionar una majestuosa altura de 14 metros en la entrada de la tienda.
El interior del vacío lo ocupan cuatro volúmenes escultóricos que acogen el programa de la tienda: espacio rolex en planta baja; bar privado en planta primera; zona lounge y espacio de exposición en la última planta; el cuarto volumen es el núcleo de comunicación vertical con ascensor y escaleras que conecta todas las plantas hasta el sótano. En el sótano se incluye una zona de backoffice con oficina, taller, cocina, baño y cámara acorazada. Los cuatro grandes volúmenes están recubiertos en acero inoxidable con acabado cromado espejo. El despiece de las planchas de acero es ondulado generando unas pequeñas deformaciones sobre la superficie que crean una imagen reflejada ligeramente distorsionada.
Cada uno de los volúmenes tiene un interior completamente diferente contrastando con el revestimiento homogéneo exterior. Estos espacios interiores son el resultado de experimentar con las deformaciones de diferentes materiales para conseguir una serie de atractivas texturas que invitan a entrar y tocar. El techo y paredes del espacio de tres alturas que envuelve los volúmenes están recubiertos con un textil tensado blanco mate y translúcido que proporciona una iluminación homogénea e intensa de forma que se evitan los reflejos sobre las cajas plateadas y se enfatizan sus efectos distorsionados.
El resultado es una colección de piezas escultóricas y abstractas que reflejan una imagen ilusoria.
OHLAB / Paloma Hernaiz y Jaime Oliver acaban de ganar el prestigioso premio WIN Awards con este Proyecto. Los WIN Awards premian los mejores proyectos de Interiorismo del mundo de cada año y fueron entregados en la galería Saatchi de Londres el pasado 30 de octubre.
El director de cine Jose Taltavull ha dirigido 2 películas cortas sobre el proyecto, una sobre el proceso de construcción y otra sobre la tienda acabada. Los cortos pueden verse aquí:
http://www.taltavull.es/OHLAB-_-RELOJERIA-ALEMANA
- Architectes
- OHLAB
- Année
- 2013
- Statut du projet+
- Construit
- Client
- Relojería Alemana
- Équipe
- OHLAB
- Aparejador
- Jorge Ramón
- Estructura
- Jesús Alonso
- Fotógrafo
- José Hevia




















