Umbau eines Familienhauses

Küsnacht, Suisse
Erdgeschoss
Photo © Studio Gataric Fotografie

Zeitreise eines 70er-Jahre Hauses

Der Auftrag beim Umbau des Zweifamilienhauses in Küsnacht war von Anfang an klar definiert: Die Bauherrschaft wollte das Haus mit einer Kernsanierung von einem Zweifamilien- zu einem Einfamilienhaus umbauen. Dabei sollte es modern und umweltfreundlich werden, ohne dabei den ursprünglichen Charakter ganz zu verlieren. Wichtig war beim Umbau aber vor allem auch der ökologische Aspekt.

Die Gebäudesanierungen von Raumtakt haben einen hohen Anspruch an die Umweltfreundlichkeit eines Hauses. Dabei ist es dem Architekturbüro aber auch ein Anliegen, die Budgetvorgaben der Bauherrschaft jederzeit zu erfüllen. Bei dem Haus in Küsnacht hat man sich deshalb auf einen gestaffelten Fünf-Jahres-Plan für den Gesamtumbau festgelegt. In diesem Hauptprojekt wurde das Haus umgebaut, später sollen noch weitere Aspekte für eine umweltfreundliche Lösung hinzukommen. Damit konnte Raumtakt den Ansatz verfolgen, ein zukunftsträchtiges Haus mit energetischen Massnahmen zu erstellen.

Doch was bedeutet zukunftsträchtig? In der ersten Phase des Projekts wurde auch ein Bauphysiker beauftragt, der mit- half, umweltfreundliche Produkte zu evaluieren. So wurde schliesslich das Dach mit Cellulose-Flocken, die aus wieder- verwendbarem Papier bestehen, gedämmt. Auch bei den Fenstern kam eine Dreifach-Isolierung zum Zug. Der von Raumtakt erstellte Plan sieht nun vor, dass in fünf Jahren Erdsondenbohrungen gemacht werden und diese Technologie bei einer neuen Heizung eingesetzt wird.

Es gab klare Anforderungen an das Haus, etwa an die Küche, die halboffen werden sollte, an die Anzahl der Zimmer sowie die Erschliessung zum grossen Wohnzimmer. Dazu wurden mehrere Durchbrüche im Haus sowie auch Einbaulösungen zusammen mit einem Schreiner vorgenommen.

Das Zweifamilienhaus wurde im Jahr 1976 vom Architekten Franz Jung, Sohn von Carl Gustav Jung, geplant und gebaut.

Erdgeschoss
Photo © Studio Gataric Fotografie
Erdgeschoss
Photo © Studio Gataric Fotografie
Erdgeschoss
Photo © Studio Gataric Fotografie
Obergeschoss
Photo © Studio Gataric Fotografie
Obergeschoss
Photo © Studio Gataric Fotografie
Obergeschoss
Photo © Studio Gataric Fotografie
Obergeschoss
Photo © Studio Gataric Fotografie
Erdgeschoss
Photo © Studio Gataric Fotografie
Erdgeschoss
Photo © Studio Gataric Fotografie
Erdgeschoss
Photo © Studio Gataric Fotografie
Erdgeschoss
Photo © Studio Gataric Fotografie
Westfassade
Photo © Studio Gataric Fotografie
Aussenansicht
Photo © Studio Gataric Fotografie
Aussenansicht
Photo © Studio Gataric Fotografie
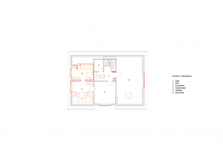
Grundriss Obergeschoss
Dessin © RAUMTAKT GmbH
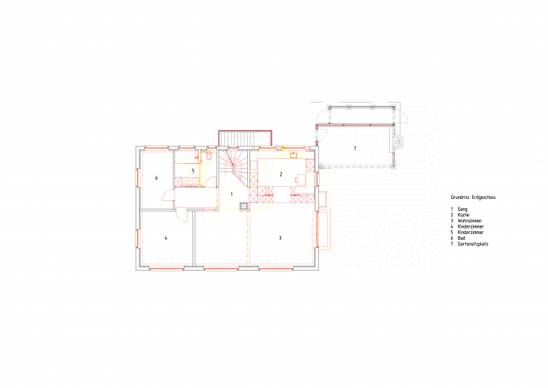
Grundriss Erdgeschoss
Dessin © RAUMTAKT GmbH
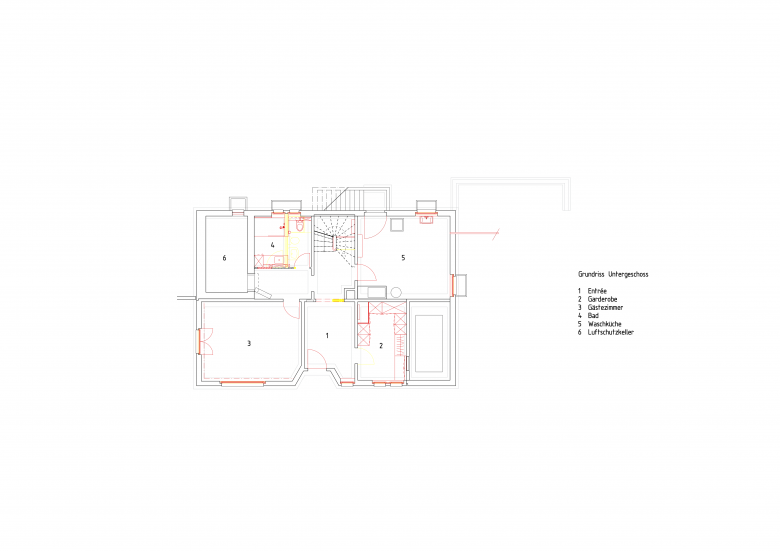
Grundriss Untergeschoss
Dessin © RAUMTAKT GmbH
Südfassade
Dessin © RAUMTAKT GmbH
Nordfassade
Dessin © RAUMTAKT GmbH
Westfassade
Dessin © RAUMTAKT GmbH
Ostfassade
Dessin © RAUMTAKT GmbH
Architectes d'Intérieur
RAUMTAKT
Année
2020
Statut du projet+
Construit
Client
Privat
Équipe
Stefan Müller
Bauingenieur
Ingenieurbureau Heierli AG
Bauphysik
Braune Roth AG
Elektrische Installationen / Telematik
Reich + Nievergelt AG

Projets liés 

  • Gymnasium Schulstraße
    Kronaus Mitterer Architekten
  • GROHE Water Experience Center
    D’art Design Gruppe GmbH
  • Limmatquai 4
    Kästli Storen
  • Volksschule Erlaaer Schleife
    Kronaus Mitterer Architekten
  • Ortsdurchfahrt Domat/Ems
    Luminum GmbH

Magazine 

Autres projets de RAUMTAKT 

Umbau und Erweiterung eines Familienhauses
Küsnacht, Suisse
Umbau und Umnutzung Head Office Monami
Zürich, Suisse
Umbau Head Office AQ Investment
Zürich, Suisse
Umbau eines Familienhauses
Zürich, Suisse
Umbau Head Office South Pole
Zürich, Suisse