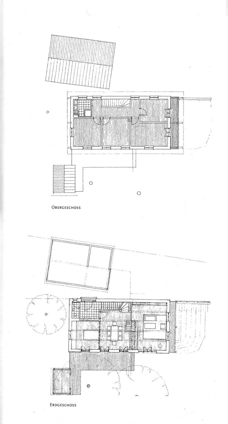
Wohnhaus Link
Pöcking, Allemagne
Einfamilienhaus mit Garage und Gartenhaus für eine 6-köpfige Familie. Umfang. 200 qm WF, Garage, Gartenpavillon
Video
“Die große Kunst, ein kleines Haus zu bauen”, von Dieter Wieland im BR (Bayerischer Rundfunk)
Kunde
privat
Leistung
Architektur und Interior
Bearbeitungszeitraum
1998-2000
Projektbeteiligte
Bruno Franchi
Fotos
Jens Weber, München
Bruno Franchi, München













