Wohnhausanlage Petrusgasse
Petrusgasse 3 und 5, Wien, Autriche
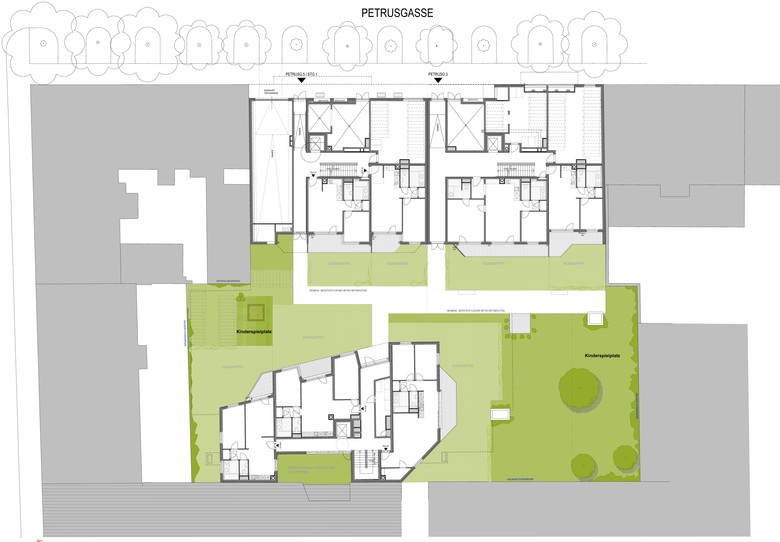
Es gelang trotz dichter Bebauung Baukörper mit optimalem Lichteinfall von Süden zu konzipiert, die von einem attraktiven durchgängigen Grünbereich umgeben sind. Verwirklicht wurden kompakte 2-Zimmerwohnunge, wie auch größere Wohneinheiten in den Dachgeschossen.
Städtebauliche Aspekte – Die wesentlichen Ausgangspunkte für die Anordnung der Baukörper auf den beiden Bauplätzen waren:
1. Einhaltung von ausreichenden Abständen zwischen den Gebäuden
2. Ermöglichen eines optimalen Lichteinfalles von Süden trotz dichter Bebauung
3. Abdecken der dominierenden Feuermauer an der östlichen Grundstücksgrenze
4. Schaffen eines attraktiven, durchgängigen Grünbereiches auch für die Bestandsgebäude Paulusgasse 1 und 3
Die im Hof mögliche Baumasse wurde zum Teil zum Straßentrakt hinzugefügt und teilweise in einer Rautenform an die östliche Feuermauer angeordnet. Dadurch entsteht ein luftiger, durchgängiger Hofbereich, und die Fassaden der Gebäude weisen ausreichende Abstände zueinander auf. Die Rautenform des Hofgebäudes gewährleistet eine gute Besonnung aller Hofwohnungen, ohne Schattenwurf auf die anderen Gebäude.
Nach Simulierung unterschiedlicher Varianten der Besonnung des Innenhofes, wurde die optimale Baukörperstellung ermittelt.
Gebäudetypologie – Entsprechend der Anforderung an ein Vorsorgeprojekt weisen die Gebäude eine möglichst große Anzahl an kompakten 2-Zimmer Wohnungen mit je rund 50m2 Nutzfläche auf. Größere Wohnungen, etwa in den Dachgeschossen, sind mit einer größeren Zimmeranzahl geplant worden, um eine optimale Vermietbarkeit zu garantieren.
Ein wichtiger Aspekt bei der Planung der Zweizimmerwohnungen war die getrennte Nutzbarkeit der beiden Zimmer. Aus diesem Grund sind die Sanitärräume in allen Wohnungen vom Schlafzimmer aus, ohne Durchquerung des Wohnraumes, zu erreichen. Aufgrund der Baukörperform wird eine gegenseitige Einsehbarkeit der Wohnungen vermieden. Sämtliche Wohnungen verfügen über private Freiräume in Form von Gärten, Balkonen, Loggien oder Terrassen. Im Erdgeschoss können die Wohneinheiten zum Innenhof hin mit attraktiven Eigengärten angeboten werden. Im straßenseitigen Erdgeschoss sind Müllräume und Fahrradabstellräume angeordnet.
- Architectes
- P.GOOD Praschl-Goodarzi Architekten ZT GmbH
- Année
- 2015
- Statut du projet+
- Construit














