Sparkasse Allgäu Hauptstelle Kempten
Kempten, Allemagne
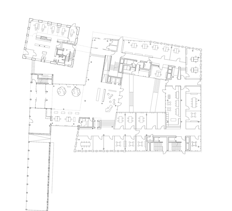
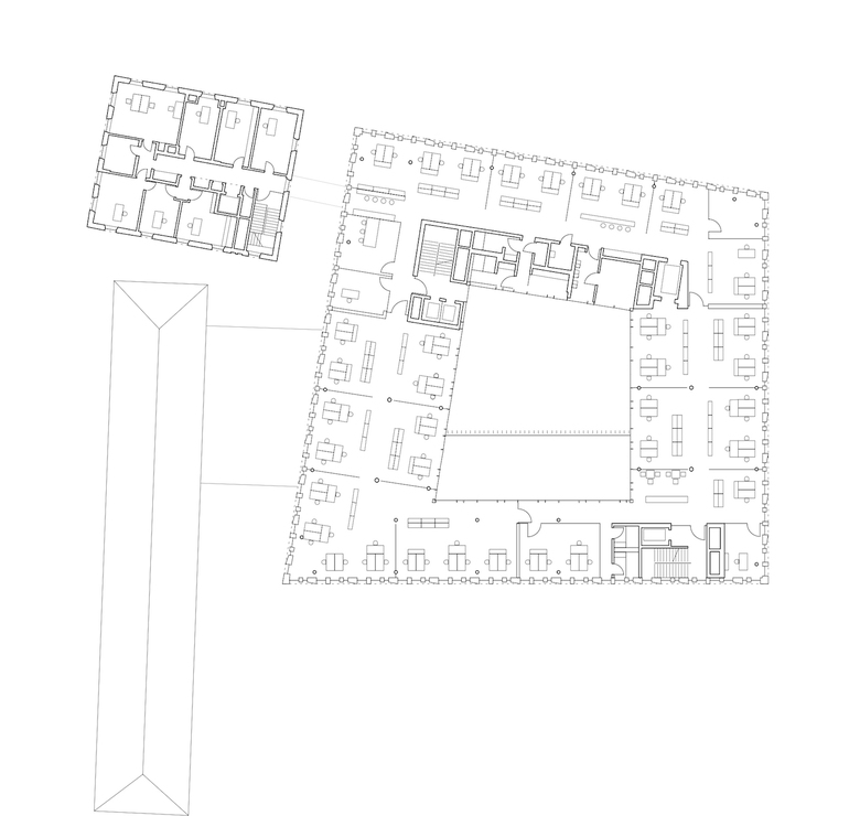
Am Residenzplatz in Kempten, im Anschluss an die historischen „langen Stände“, errichtet die Sparkasse ihre neue Hauptstelle. Der sensible Übergang zum Stadtgarten und die Integration von Teilen des Weidlehauses erfordern eine präzise Setzung des Baukörpers. Um einen Innenhof herum entsteht ein kompakter Verwaltungsbau, der zum Residenzplatz viergeschossig und zum Stadtgarten fünfgeschossig ausgebildet wird. Im Erdgeschoss befindet sich die neue Kundenhalle. Geschosshohe, in wechselnden Breiten und Winkeln angeordnete Fassadenelemente aus Architekturbeton geben der neuen Hauptstelle Maßstäblichkeit und Eigenständigkeit im historischen Kontext.
Auftraggeber
Sparkasse Allgäu, Kempten
Bruttogeschossfläche
8.800 m2
Bruttorauminhalt
34.920 m3
Leistungsbild
Lph. 2 – 8 HOAI
- Architectes
- Auer Weber
- Année
- 2017
- Statut du projet+
- Construit
Projets liés
Magazine
-
-
Bâtiment de la semaine
The Three-Body Problem: Trapped in a Wave Sandwich
Eduard Kögel, Scenic Architecture Office | 13.04.2026 -












