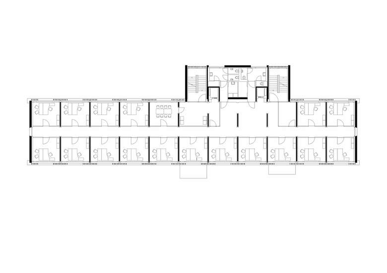
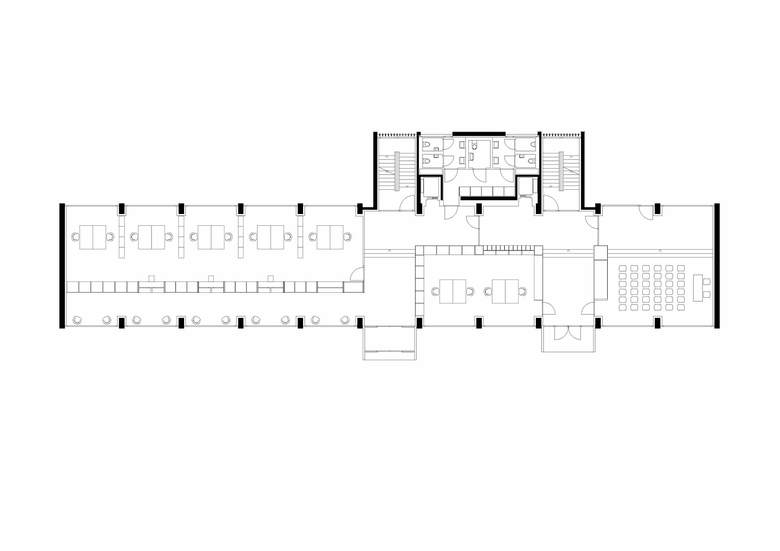
Stabile Amministrativo
Via Trevano 69, Lugano, Suisse
- Architectes
- Durisch + Nolli Architetti
- Année
- 2019
- Statut du projet+
- Construit
- Client
- Sezione della Logistica, Repubblica e Cantone Ticino
- Équipe
- Aldo Nolli, Pia Durisch, Alfredo Mazzieri, Jacopo Laffranchini
- Ingegnere Civile
- Lurati Muttoni Partner
- Ingegnere RCVS
- Tecnoprogetti SA
- Ingegnere Elettrico
- Erisel SA















